Vente Appartement 59130, Lambersart france 199 000 €
Descriptif du bien
T4 lumineux avec parking Fort potentiel Secteur prisé Lambersart Canon d'Or / Lambersart
EXCLUSIVITE VACHERAND
Contactez Sarah FRANCOIS au O7.69.25.76.O5
Idéalement situé dans le très recherché secteur du Canon d'Or à Lambersart, à deux pas de toutes les commodités, découvrez ce T4 de 4 pièces au fort potentiel, situé en rez-de-chaussée d'une agréable copropriété des années 70 bien entretenue.
L'emplacement est un véritable atout : vie de quartier prisée, commerces de proximité accessibles à pied (boulangerie, fleuriste, marché de quartier), transports et écoles à quelques minutes. Un cadre de vie convivial et pratique, très apprécié des familles.
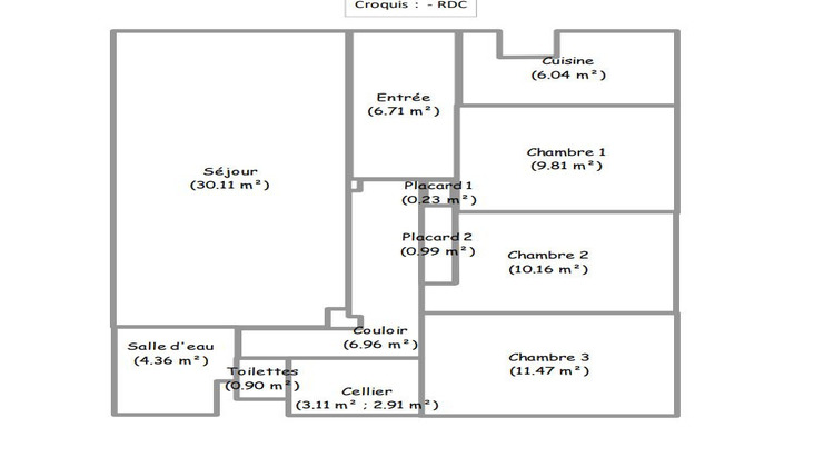
L'appartement offre une belle luminosité grâce à son exposition Est-Ouest et une distribution fonctionnelle permettant de nombreuses possibilités d'aménagement.
Il se compose de :
- un vaste séjour d'environ 30 m², lumineux et convivial
- une cuisine séparée
- trois chambres
- une salle de bain
- un cellier
- de nombreux espaces de rangement
L'ensemble nécessite une rénovation complète (menuiseries, cuisine, salle de bain, plomberie
), offrant ainsi une belle opportunité de créer un appartement à votre image dans un secteur très recherché.
Les charges de copropriété comprennent le chauffage, l'eau chaude et l'eau froide, un vrai confort au quotidien.
Un stationnement privatif sécurisé vient compléter ce bien.
Les + :
Secteur Canon d'Or très recherché
Appartement traversant Est-Ouest, lumineux
Séjour spacieux de 30 m²
3 chambres
Parking sécurisé
Tout à pied : commerces, marché, écoles
Fort potentiel après rénovation
Idéal pour un projet de résidence principale ou d'investissement dans l'un des quartiers les plus prisés de Lambersart.
- Type de bien : Appartement
- DPE : E - 231 à 330 kWh/².an
- GES : D - 21 à 35 kg eq CO2/².an
- Surface : 90 m²
- Localisation : France - Hauts-de-France - Nord
- Ville : Lambersart
- Code postal : 59130
- Annonce créée le 20/03/2026





