Vente Appartement 01150, Lagnieu france 89 000 €
Descriptif du bien
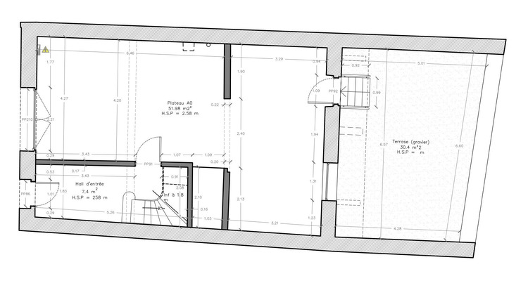
Novea Immobilier vous propose à la vente ce plateau d'environ 52, exposé est au RDC, d'une bâtisse de 1940 et bénéficiant d'un extérieur privatif de 30m2.
Secteur-environnement :
Le Parc industriel de la Plaine de l'Ain (plus de 180 entreprises et 8000 salariés) se trouve à 10 minutes.
L'accès à l'A42 est à 15 minutes, tout comme les gares ferroviaires d'Amberieu en Bugey et de Meximieux.
Nous proposons à la vente des appartements type «?plateaux?», offrant ainsi une grande liberté d'aménagement.
Liste des travaux réalisés par le VENDEUR :
Les renforts structurels nécessaires, renforcement des planchers
Les travaux de maçonnerie nécessaires à la création de nouvelles ouvertures, réalisés conformément à la Déclaration Préalable (DP) acceptée par l'autorité administrative compétente.
Les cloisons séparatives entre logements, en cloisons de type SAD.
La réalisation des plafonds coupe-feu entre logements et parties communes.
La fourniture et la pose des portes palières desservant chaque lot,
La mise en place des réseaux communs (eau, électricité, évacuations,
télécommunications, ventilation).
Concernant les parties communes, travaux réalisés par le VENDEUR :
Les parties communes seront intégralement réalisées et livrées achevées par le
vendeur, comprenant notamment :
La création et l'aménagement des gaines techniques communes
Le contrôle et la mise en place d'un film sous-toiture
Circulations horizontales et verticales
Accès et halls / Escaliers
Réseaux et équipements communs
Le cloisonnement complet des cages d'escaliers
L'application d'un traitement ignifuge certifié sur l'ensemble des éléments bois
composant les escaliers.
Les travaux de ravalement des façades sont prévus mais ne sont pas inclus dans la présente opération, ils seront réalisés ultérieurement, après remplacement des menuiseries extérieures par les acquéreurs.
Les lots sont vendus bruts, sans aménagement intérieur, sans équipement sanitaire, cuisine ni revêtement.
Les réseaux privatifs intérieurs aux lots, ainsi que leur distribution interne, sont
exclusivement à la charge des acquéreurs.
Nous vous proposons un chiffrage pour les travaux d'aménagement intérieur, vous offrant ainsi une solution clé en main.
Idéal pour un primo-accédant ou un investissement locatif dans un secteur très demandé, situé rue de la Gare à Lagnieu.
N'hésitez pas à me contacter pour plus de renseignements.
Honoraires à la charge du vendeur. DPE en cours. Les informations sur les risques auxquels ce bien est exposé sont disponibles sur le site Géorisques : georisques.gouv.fr. Ce bien vous est proposé par un agent commercial (Entreprise individuelle).
Votre conseiller NOVEA Immobilier Lyon 6 : Fabrice LABEYE
Agent commercial (Entreprise individuelle)
RSAC 890775042
RCP GALIAN-SMABTP RCACO-21-018238
Retrouvez l'annonce de l'agence immobilière NOVEA Immobilier Lyon 6 sur : https://www.novea-immobilier.fr/ref/VA18051
- Type de bien : Appartement
- Surface : 52 m²
- Localisation : France - Auvergne-Rhône-Alpes - Ain
- Ville : Lagnieu
- Code postal : 01150
- Annonce créée le 27/03/2026


