Vente Appartement 94210, La Varenne-Saint-Hilaire france 355 000 €
Descriptif du bien
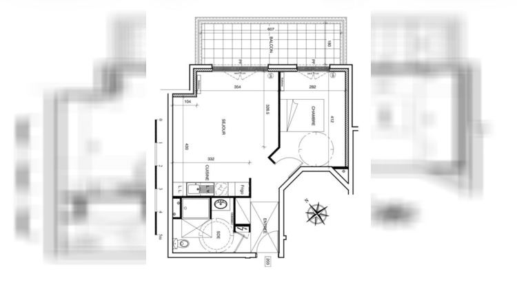
Iad France - Danielle Iglesias (06 60 66 60 92) vous propose : LA VARENNE-LES MURIERS. Dans une petite résidence sécurisée de bon standing, bel appartement 2 pièces situé au 2 ème étage. Il se compose d'un séjour donnant sur terrasse avec cuisine ouverte, 1 chambre, salle d'eau indépendante et WC séparés. Immeuble répondant aux normes handicapés, RE 2020 et RT 2012. Une place de parking en sous sol complète ce bien. D'autres lots sont disponibles. Me contacter.
Honoraires d'agence à la charge du vendeur. Bien non soumis au DPE. Les informations sur les risques auxquels ce bien est exposé sont disponibles sur le site Géorisques : www.georisques.gouv.fr. La présente annonce immobilière a été rédigée sous la responsabilité éditoriale de Mme Danielle Iglesias EI (ID 15704), mandataire indépendant en immobilier (sans détention de fonds), agent commercial de la SAS I@D France immatriculé au RSAC de CRETEIL sous le numéro 811536846, titulaire de la carte de démarchage immobilier pour le compte de la société I@D France SAS.
Retrouvez tous nos biens sur notre site internet. www.iadfrance.fr.
Informations LOI ALUR :
Honoraires charge vendeur. (gedeon_6727_32288867)
- Type de bien : Appartement
- Surface : 46 m²
- Localisation : France - ile-de-france - Val de Marne
- Ville : La Varenne-Saint-Hilaire
- Code postal : 94210
- Annonce créée le 11/12/2025

