Vente Appartement 06320, La Turbie france 1 330 000 €
1 / 4
Descriptif du bien
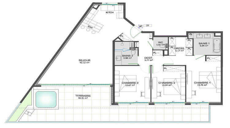
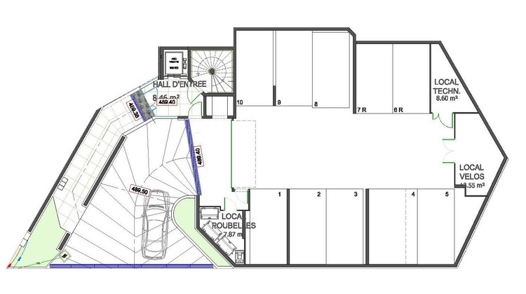
Proche village. Dans un environnement résidentiel, à seulement quelques minutes de Monaco, 4 pièces situé au deuxième étage. L'appartement offre une surface habitable de 107,11 m2 et se compose d'un séjour lumineux donnant sur une spacieuse terrasse de 47,89 m2, d'une cuisine entièrement équipée, de trois chambres confortables et de deux salle de bains avec WC. WC indépendant. Parking inclus
- Type de bien : Appartement
- GES : A -< 6 kg eq CO2/².an
- Surface : 107 m²
- Localisation : France - provence-alpes-cote-d-azur - Alpes Maritimes
- Ville : La Turbie
- Code postal : 06320
- Annonce créée le 19/11/2025



