Vente Appartement 06320, La Turbie france 392 000 €
1 / 5
Descriptif du bien
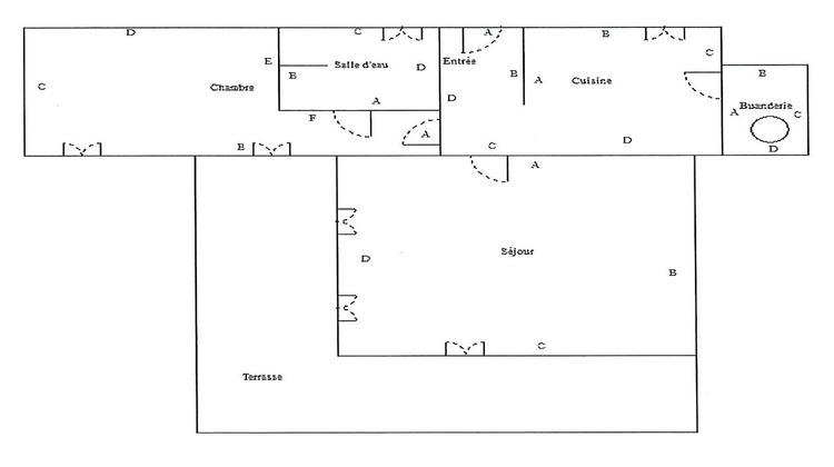
A 5 minutes à pied du village de La Turbie, de ses commodités et de ses transports, appartement de 42,25 m2 (Carrez), avec entrée, salon/salle à manger d'environ 20 m2, cuisine semi-ouverte, une chambre, salle d'eau avec WC, buanderie. Terrasse de 37 m2 avec vue mer et Monaco, exposition Sud. Un jardin de 77 m2 avec jouissance privative. Une place de stationnement. Piscine dans la résidence.
Les informations sur les risques auxquels ce bien est exposé sont disponibles sur le site Géorisques : www.georisques.gouv.fr
- Type de bien : Appartement
- GES : A -< 6 kg eq CO2/².an
- Surface : 42 m²
- Localisation : France - provence-alpes-cote-d-azur - Alpes Maritimes
- Ville : La Turbie
- Code postal : 06320
- Annonce créée le 02/07/2025




