Vente Appartement 17000, La Rochelle france 333 000 €
Descriptif du bien
L'Agence MON BIEN A LA MER, Spécialiste de l'immo neuf en Bord de Mer, vous présente :
TRAVAUX EN COURS - Livraison juin 2026 :
Résidence au sud de LA ROCHELLE, axe Emile Normandin, entre le marais du Tasdon, plage d'Aytré et Port des Minimes, tous commerces et transports à proximité.
Nombreuses pistes cyclables permettant d'accéder : Vieux Port 8min, Marais du Tasdon 5 min, gare TGV 2h30 Paris 7 min, 8 min campus universitaire, 6 min Plage du Roux.
Ascenseur, Frais de notaire réduits.
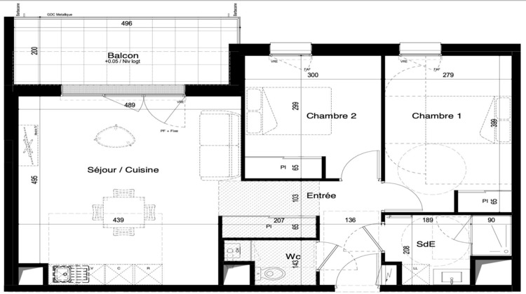
Joli T3 sur cour, calme, de 64m2 comprenant :
- Séjour 25,39m2 donnant sur une belle terrasse de 9,33m2 (2m de profondeur)
- Deux chambres 12,9-10,87m2 avec placards
- Salle d'eau douche à l'italienne, wc séparés
- Parking inclus.
Nous Consulter
Honoraires à la charge du vendeur. Non soumis au DPE. Les informations sur les risques auxquels ce bien est exposé sont disponibles sur le site Géorisques : georisques.gouv.fr.
Votre conseiller MON BIEN A LA MER : Gérant - .fr MON BIEN A LA MER
Carte T CPI 2201 2018 000 025 040
RCP ACM IARD B1 7025278
- Type de bien : Appartement
- Surface : 63 m²
- Localisation : France - Nouvelle-Aquitaine - Charente Maritime
- Ville : La Rochelle
- Code postal : 17000
- Annonce créée le 20/03/2026





