Vente Appartement 74800, LA ROCHE-SUR-FORON france 339 000 €
Descriptif du bien
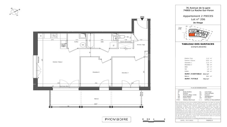
Située face à la gare de La Roche-sur-Foron, cette nouvelle résidence intimiste de 33 appartements bénéficie d'un emplacement stratégique pour les citadins en quête de grands espaces, souhaitant conjuguer la fluidité des flux genevois avec la douceur et le charme d'une vie de quartier disposant de toutes les commodités. Cet appartement neuf et lumineux de 63,30 m² au deuxième étage, bénéficie d'un superbe balcon de 16,10m² avec une belle exposition Sud-Est. Il se compose d'une entrée, d'un cellier, de deux chambres, d'une salle de bains, d'un séjour de 22,2m² ainsi que de deux places de parking privatives en sous-sol. Un lieu de vie singulier aux prestations soignées pour ceux qui cherchent à habiter le mouvement, sans jamais perdre de vue la beauté sauvage de la Haute-Savoie. Dans le cadre de ce programme neuf, les frais de Notaire sont offerts. A noter : les choix de personnalisation et/ou les possibilités de modifications sont envisageables sous réserve de l'avancement du chantier. Bien soumis au statut de la copropriété - 33 lots d'habitation. LOTS DISPONIBLES DU T2 AU T3 Projet VEFA - DPE non encore disponible. Les informations sur les risques auxquels ce bien est exposé sont disponibles sur le site Géorisques : www.georisques.gouv.fr. Dossier complet sur demande. Contact : Ariane 06 81 30 65 84 Copropriété de 33 lots - dont 33 lots habitation.(Pas de procédure en cours). Ariane VINCIGUERRA (EI) Agent Commercial - Numéro RSAC : 835 156 589 - Annecy.
- Type de bien : Appartement
- Surface : 63 m²
- Localisation : France - Auvergne-Rhône-Alpes - Savoie (Haute)
- Ville : LA ROCHE-SUR-FORON
- Code postal : 74800
- Disponible le 01/10/2027
- Annonce créée le 03/03/2026


