Vente Appartement 35780, LA RICHARDAIS france 335 000 €
Descriptif du bien
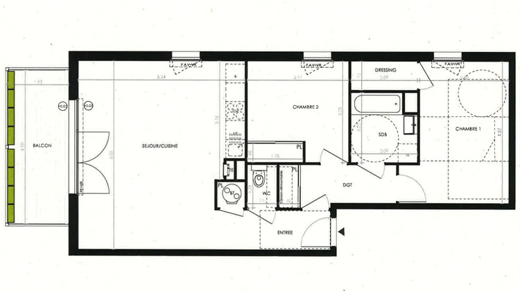
La Richardais - Appartement 3 pièces de 70.30m² Ouest - 2ème étage - balcon 8.45m² - stationnements privatifs Situé à La Richardais, cet appartement bénéficie d'un emplacement privilégié en bordure de Rance, à proximité immédiate de Saint-Malo et Dinard. Facilement accessible en voiture ou via les transports en commun, le secteur offre un cadre de vie pratique et agréable, avec l'ensemble des commerces et services du quotidien à portée de main. Au sein d'une résidence intimiste d'architecture contemporaine, découvrez cet appartement de 3 pièces situé au 2ème étage avec ascenseur. Il dispose d' une surface habitable 70.30m² et se compose d'une entrée, d'un séjour lumineux avec cuisine ouverte ouvrant sur un balcon de 8.45 m², d'un dégagement avec placard, 2 chambres dont une avec dressing et l'autre avec placard, d'une salle de bains et de WC indépendants. Stationnements privatifs inclus. Que ce soit pour y vivre à l'année, comme résidence secondaire ou pour un investissement locatif, ce bien constitue une opportunité. Les atouts : un environnement calme entre terre et mer, des balades le long de la Rance, un port de plaisance, des plages à proximité, ainsi qu'une offre complète d'infrastructures : commerces de proximité, marché local, crèche, écoles, médiathèque, équipements sportifs et club de voile. Prix promoteur - frais de notaire réduits - Hautes performances énergétiques. Les informations sur les risques auxquels ce bien est exposé sont disponibles sur le site Géorisques : www.georisques.gouv.fr. Photos non contractuelles - Suggestions d'aménagements Copropriété de 17 lots - dont 17 lots habitation. (Pas de procédure en cours). Charges annuelles : 1008 euros.
- Type de bien : Appartement
- Surface : 70 m²
- Localisation : France - Bretagne - Ile et Vilaine
- Ville : LA RICHARDAIS
- Code postal : 35780
- Annonce mise à jour le 20/01/2026


