Vente Appartement 92250, LA GARENNE-COLOMBES france 200 000 €
Descriptif du bien
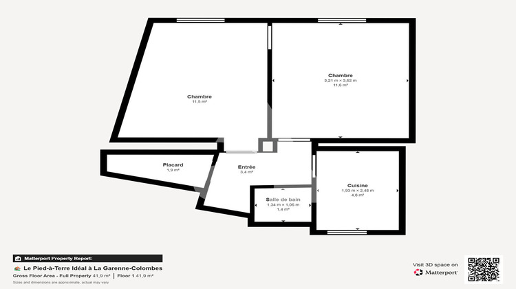
L'agence Sixième Avenue, spécialiste de l'immobilier à La Garenne-Colombes, vous propose cet appartement 2 pièces de 35,64 m² Situé Rue Médéric, ce logement simple et fonctionnel en rez-de-chaussée est parfait pour un investissement ou une première acquisition. Il se compose d'un séjour, d'une cuisine aménagée, d'une chambre, d'un dressing, et d'une salle d'eau avec WC. L'agencement est classique et bien utilisé, offrant une surface Loi Carrez de 34,85 m² L'atout majeur de cet appartement est sa facilité d'accès : la gare et les bus sont à seulement 3 minutes à pied, et le tramway à 5 minutes. Construit en 1930, le chauffage y est individuel au gaz Un appartement simple, bien placé, prêt à vivre. Copropriété de 63 lots - dont 30 lots habitation. (Pas de procédure en cours). Charges annuelles : 820.16 euros.
- Type de bien : Appartement
- DPE : E - 231 à 330 kWh/².an
- GES : E - 36 à 55 kg eq CO2/².an
- Surface : 35 m²
- Localisation : France - ile-de-france - Hauts de Seine
- Ville : LA GARENNE-COLOMBES
- Code postal : 92250
- Annonce mise à jour le 17/02/2026







