Vente Appartement 92250, LA GARENNE-COLOMBES france 495 000 €
Descriptif du bien
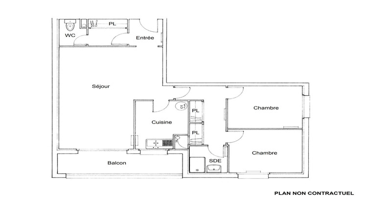
LA GARENNE CENTRE 3 PIÈCES 67,10 m² + BALCON 7 m² + BOX + CAVE Idéalement situé en plein coeur de La Garenne-Colombes, dans une résidence récente de deux étages parfaitement entretenue, cet agréable 3 pièces de 67,10 m² offre un plan optimisé sans perte d'espace. Il se compose de : - une entrée avec placard/dressing, - un séjour spacieux de 26,55 m² bénéficiant d'une grande baie vitrée coulissante ouvrant sur un beau balcon de 7 m², - une cuisine aménagée (ouverture possible sur le séjour pour une configuration cuisine US), - un espace nuit distinct avec 2 chambres, un grand linéaire de rangement et une salle d'eau moderne, - un wc indépendant. Un BOX extérieur de belles dimensions ainsi qu'une CAVE complètent ce bien. Chauffage et eau chaude individuels électriques. Copropriété agréable et soignée, parties communes rénovées en 2022. Les atouts : - Plan fonctionnel et sans perte d'espace - Lumineux et calme - Résidence bien entretenue - Proximité immédiate à pied de nombreuses commodités Localisation idéale : - A 3 min des commerces du Rond-Point du Souvenir Français et de la rue Voltaire, - École sectorisée Sagot Voltaire, - Transports : bus 163 (Neuilly, porte de Champerret) à 3 min, gare SNCF La Garenne-Colombes (ligne Saint-Lazare) à 10 min, et tram T2 Les Fauvelles (La Défense) à 7 min. PLAN OPTIMUM - COUP DE COEUR ASSURÉ Copropriété de 39 lots - dont 11 lots habitation. (Pas de procédure en cours). Charges annuelles : 2438 euros.
- Type de bien : Appartement
- DPE : D - 151 à 230 kWh/².an
- GES : B - 6 à 10 kg eq CO2/².an
- Surface : 67 m²
- Localisation : France - ile-de-france - Hauts de Seine
- Ville : LA GARENNE-COLOMBES
- Code postal : 92250
- Annonce créée le 03/02/2026









