Vente Appartement 92250, LA GARENNE-COLOMBES france 215 000 €
1 / 5
Descriptif du bien
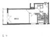
LA GARENNE - PROCHE SOUVENIR FRANÇAIS Studio dans résidence semi -récente en Pierre de Taille. 2ème et dernier étage. Pièce principale, cuisine (possibilité d'ouverture sur le séjour créant un espace de vie de 20m²), salle de bains, wc séparés. Balcon et Cave. CLAIR et CALME. A proximité de tous les commerces. Transports : Gare SNCF LA GARENNE ou COURBEVOIE. Tram T2 direct LA DEFENSE. EXCLUSIVITÉ BRACKE IMMOBILIER. Copropriété de 91 lots - dont 23 lots habitation. (Pas de procédure en cours). Charges annuelles : 1734 euros.
- Type de bien : Appartement
- DPE : F - 331 à 450 kWh/².an
- GES : F - 56 à 80 kg eq CO2/².an
- Surface : 33 m²
- Localisation : France - ile-de-france - Hauts de Seine
- Ville : LA GARENNE-COLOMBES
- Code postal : 92250
- Annonce mise à jour le 07/10/2025




