Vente Appartement 44500, La Baule france 491 000 €
1 / 6
Descriptif du bien
DERNIER APPARTEMENT A VENDRE
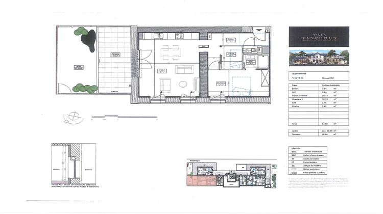
A proximité immédiate du marché de La Baule, dans une magnifique Batisse, réhabilitation de standing d'un T2 bis de 56,55 m2 env. en rez de chaussée avec un jardin de 20 m2 env. et une terrasse de 15,80 m2 env.
Il se compose d'une entrée, un séjour de 29,47 m2 avec cuisine ouverte aménagée et équipée donnant sur la terrasse et le jardin, une chambre avec salle d'eau ( douche à l'italienne ), un coin cabine et un wc indépendant.
Belles prestations.
Achat d 'une Place de Parking en sus
- Type de bien : Appartement
- GES : A -< 6 kg eq CO2/².an
- Surface : 56 m²
- Localisation : France - pays-de-la-loire - Loire Atlantique
- Ville : La Baule
- Code postal : 44500
- Annonce créée le 21/05/2025





