Vente Appartement 69210, L'ARBRESLE france 225 000 €
Descriptif du bien
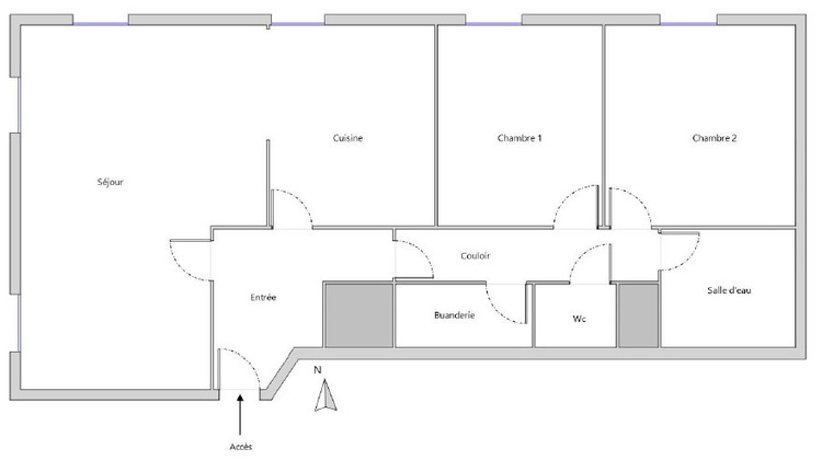
Votre agence ERA Immobilier vous propose ce charmant appartement T3 de 70 m², idéalement situé en plein coeur de L'Arbresle, une commune dynamique et recherchée aux portes de Lyon. Bénéficiant d'un emplacement privilégié en centre-ville, ce bien profite d'un environnement à la fois calme et pratique, à proximité immédiate de toutes les commodités : commerces, écoles, services, restaurants ainsi que de la gare, facilitant les déplacements quotidiens. Situé au sein d'un immeuble ancien entièrement réhabilité, dans une copropriété sécurisée de 23 lots, cet appartement de 70 m² loi Carrez a été entièrement rénové en 2013 avec des prestations de qualité. Il allie harmonieusement le charme de l'ancien (volumes, cachet) et le confort moderne, offrant un cadre de vie agréable et fonctionnel. Dès l'entrée, vous découvrirez un agencement optimisé avec un couloir desservant les différents espaces. Le séjour, lumineux et convivial, s'ouvre sur une cuisine moderne aménagée et équipée, créant un véritable espace de vie chaleureux. Une buanderie indépendante vient compléter cet espace, apportant un réel confort au quotidien. L'espace nuit se compose de deux chambres confortables, idéales pour un couple, une petite famille ou un projet d'investissement. Vous bénéficierez également d'une salle d'eau moderne, parfaitement entretenue, ainsi que d'un WC indépendant. Les atouts du bien : -Appartement entièrement rénové, aucun travaux à prévoir -Place de parking privative, un véritable avantage en centre-ville -Copropriété sécurisée et bien entretenue -Bon diagnostic énergétique, garantissant une consommation maîtrisée -Environnement calme tout en étant au coeur de la vie locale Ce bien conviendra parfaitement pour une résidence principale confortable ou pour un investissement locatif serein, avec une forte demande sur le secteur de L'Arbresle. Une opportunité rare sur le marché, alliant emplacement, confort et qualité de rénovation. Copropriété de 40 lots - dont 20 lots habitation. (Pas de procédure en cours). Charges annuelles : 1323.00 euros. A visiter sans tarder ! Pour plus d'informations ou pour organiser une visite, contactez votre agence ERA Immobilier au 0761159204, Franck DA ROIT (EI) Agent Commercial - Numéro RSAC : 982046278 - VILLEFRANCHE TARARE. Copropriété de 40 lots - dont 20 lots habitation. Charges annuelles : 1323 euros. Franck DA ROIT (EI) Agent Commercial - Numéro RSAC : 982046278 - VILLEFRANCHE TARARE.
- Type de bien : Appartement
- DPE : C - 91 à 150 kWh/².an
- GES : C - 11 à 20 kg eq CO2/².an
- Surface : 70 m²
- Localisation : France - Auvergne-Rhône-Alpes - Rhône
- Ville : L'ARBRESLE
- Code postal : 69210
- Annonce mise à jour le 12/05/2026









