Vente Appartement 92130, Issy-les-Moulineaux france 363 000 €
Descriptif du bien
Iad France - Franck Layre-Cassou (06 37 54 35 66) vous propose : Première acquisition, investissement immobilier, Frais de notaire OFFERTS, 5000¤ de réduction par pièce à l'achat, ce bien rare situé dans un quartier résidentiel d'Issy-les-Moulineaux est fait pour vous !
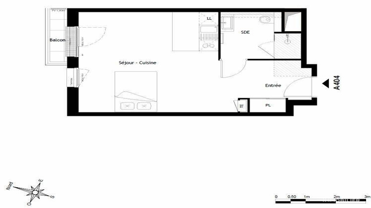
Ce magnifique studio de 34 m² environ vous offrira tout le confort et les avantages d'un appartement neuf. Disponible en 2027.
1 très grand séjour, 1 salle d'eau avec toilettes.
1 balcon complète ce bien !
Un arrêt de bus se trouve au pied de la résidence, la gare d'Issy (RER C) est à 5 min à pied de la résidence, et la station Mairie d'Issy (M12) est à 2 arrêts en bus.
Parfait équilibre entre qualité de vie et accessibilité, devenez propriétaire à Issy-les-Moulineaux !
Honoraires d'agence à la charge du vendeur. Bien non soumis au DPE. Les informations sur les risques auxquels ce bien est exposé sont disponibles sur le site Géorisques : www.georisques.gouv.fr. La présente annonce immobilière a été rédigée sous la responsabilité éditoriale de M. Franck Layre-Cassou EI (ID 86893), mandataire indépendant en immobilier (sans détention de fonds), agent commercial de la SAS I@D France immatriculé au RSAC de Paris sous le numéro 509064499, titulaire de la carte de démarchage immobilier pour le compte de la société I@D France SAS.
Retrouvez tous nos biens sur notre site internet. www.iadfrance.fr.Informations LOI ALUR : Honoraires charge vendeur. (gedeon_6727_32214534)
- Type de bien : Appartement
- Surface : 33 m²
- Localisation : France - ile-de-france - Hauts de Seine
- Ville : Issy-les-Moulineaux
- Code postal : 92130
- Annonce créée le 16/04/2026



