Vente Appartement 38750, HUEZ france 533 000 €
Descriptif du bien
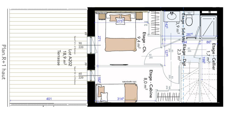
La résidence est située dans le secteur des Bergers, offrant ainsi une position géographique idéale en plein coeur de la station de l'Alpe d'Huez. Vous pouvez accéder aux commerces, restaurants et activités à pieds. Départ et retour skis aux pieds, la résidence se trouve au début des remontées mécaniques, vous faisant bénéficier d'un gain de temps considérable lors de vos journées de skis Ce très beau T2 (6 couchages) de 55,90m² est composé en haut d'un séjour avec cuisine équipée ouvert sur une terrasse de 9,10m², une salle de bains et un wc séparé. A l'étage, une chambre, une cabine sur terrasse de 18,90m² et une salle d'eau avec un wc. une place de parking en sous-sol est vendu avec l'appartement Découvrez une nouvelle génération de résidence secondaire locative : Liberté d'occupation propriétaire Revenus locatifs saisonniers Sérénité de gestion Bâtiment basse consommation Contactez Grégory pour plus d'informations au O6.69.26.64.26 Visuel non contractuel Copropriété de 68 lots - dont 68 lots habitation. (Pas de procédure en cours). Charges annuelles : 1200 euros.
- Type de bien : Appartement
- GES : B - 6 à 10 kg eq CO2/².an
- Surface : 56 m²
- Localisation : France - Auvergne-Rhône-Alpes - Isère
- Ville : HUEZ
- Code postal : 38750
- Annonce mise à jour le 03/03/2026








