Vente Appartement 14600, Honfleur france 244 800 €
Descriptif du bien
L'@gence Immobilière de PONT-L'EVEQUE vous propose :
Idéalement situé à proximité du Vieux-Bassin, dans une résidence sécurisée.
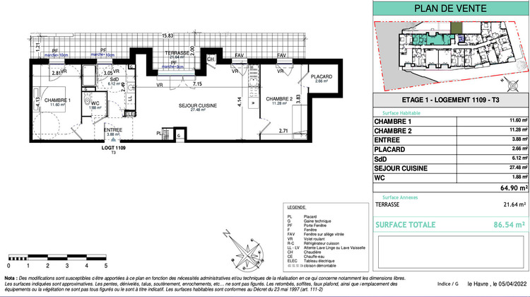
Venez découvrir cet appartement lumineux situé au premier étage de 3 pièces d'environ 65 m2.
Vaste séjour/cuisine, deux chambres indépendantes, un espace de rangements et une salle de douches.
Une place de parking dans la résidence complète le bien.
Garantie décennale et faibles charges.
Le secteur résidentiel proche de toutes les commodités vous assure calme et tranquillité.
DERNIERE DISPONIBILITE - A VOIR RAPIDEMENT !!!
Bien proposé par Mickaël VERMEERSCH (06 52 55 80 09), agent commercial.
ACHAT-VENTE-ESTIMATION-LOCATION-GESTION.
L'@gence immobilière PONT-L'EVEQUE :
40, rue Saint-Michel
14130 Pont L'Evêque.
PLUS DE BIENS SUR NOTRE SITE INTERNET : https://www.lagence-pontleveque.com
Les informations sur les risques auxquels ce bien est exposé sont disponibles sur le site Géorisques : www.georisques.gouv.fr L'@GENCE IMMOBILIERE.





