Vente Appartement 67850, Herrlisheim france 316 200 €
Descriptif du bien
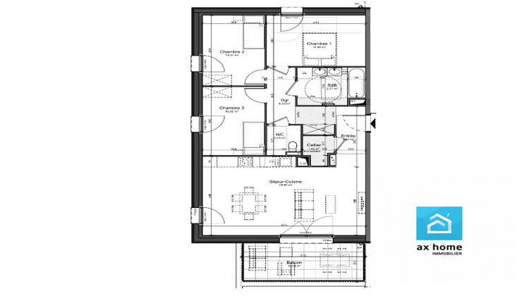
Cet appartement T4, disponible en 2026, offre un espace de vie confortable et moderne de 81.26 m². Situé au premier étage d'une résidence avec ascenseur, il comprend un salon ouvert sur une cuisine, de trois chambres spacieuses, une salle de bains et wc séparé. Profitez de l'extérieur avec un balcon de 10.49 m²
L'appartement bénéficie d'une excellente isolation thermique et phonique grâce aux fenêtres en PVC avec double vitrage. Conforme aux normes PMR, il est doté d'un chauffage collectif pour un confort optimal toute l'année et d'une exposition sud qui lui apporte une luminosité naturelle.
Côté commodités, il dispose de deux places de stationnement extérieures et est situé à proximité de nombreuses infrastructures : écoles, crèches, commerces, restaurants, et arrêts de bus. La fibre optique est également disponible.
Pour plus d'informations, contactez Ax'home Immobilier.
Les informations sur les risques auxquels ce bien est exposé sont disponibles sur le site Géorisques : www.georisques.gouv.fr.
Honoraires à la charge du vendeur. Dans une copropriété de 19 lots. Aucune procédure n'est en cours. Non soumis au DPE. Les informations sur les risques auxquels ce bien est exposé sont disponibles sur le site Géorisques : georisques.gouv.fr.
.
Ax'Home Immobilier - 2 agences de proximité pour mieux vous accompagner.
Oberhausbergen - 104A Route de Saverne (en face de Prowin)
Wiwersheim - 33 Allée de l'Economie (Galerie 'Au Jardin des Sens' au dessus d'Esprit Pain)
- Type de bien : Appartement
- Surface : 81 m²
- Localisation : France - Grand Est - Rhin (Bas)
- Ville : Herrlisheim
- Code postal : 67850
- Annonce créée le 29/11/2024


