Vente Appartement 44115, Haute-Goulaine france 279 900 €
Descriptif du bien
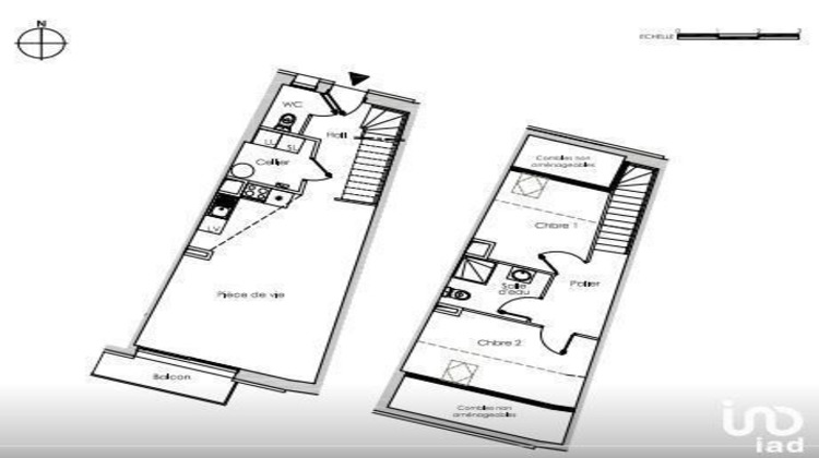
Iad France - Marc Moreau (06 11 31 71 31) vous propose : Dans le bourg de Haute-Goulaine, T3 en duplex.
Sur le premier niveau vous trouverez un grand salon de 29 m² environ avec une terrasse orienté plein sud, un cellier attenant et un WC.
À l'étage 2 grandes chambres et une salle d'eau avec WC.
Un emplacement de parking extérieur dans la résidence est associé à cet appartement.
Ce logement est éligible à PINEL avec des frais de notaire réduits.
La ville de Haute-Goulaine propose beaucoup d'infrastructures riches permettant à chacun de profiter pleinement de la ville : des écoles allants de la petite enfance jusqu'au lycée accompagnés par des équipements sportifs et culturels, autant d'atouts pour profiter d'un cadre de vie idéal au coeur du vignoble nantais. Également, de nombreux commerces de proximité et des professionnels de la santé sont installés au coeur du centre-ville.
De plus, la commune est desservie par le réseau de transport en commun départemental : Aléop. Ainsi, rejoignez très facilement les villes aux alentours et le centre de Nantes, grâce aux différents bus qui passent par la commune.
Autres logements T3 et T4 disponibles merci de me contacter
Honoraires d'agence à la charge du vendeur. Information d'affichage énergétique sur ce bien : DPE et GES vierges. Les informations sur les risques auxquels ce bien est exposé sont disponibles sur le site Géorisques : www.georisques.gouv.fr. La présente annonce immobilière a été rédigée sous la responsabilité éditoriale de M. Marc Moreau EI (ID 26742), mandataire indépendant en immobilier (sans détention de fonds), agent commercial de la SAS I@D France immatriculé au RSAC de NANTES sous le numéro 532617149, titulaire de la carte de démarchage immobilier pour le compte de la société I@D France SAS.
Retrouvez tous nos biens sur notre site internet. www.iadfrance.fr.Informations LOI ALUR : Honoraires charge vendeur. (gedeon_6727_25773633)
- Type de bien : Appartement
- Surface : 69 m²
- Localisation : France - pays-de-la-loire - Loire Atlantique
- Ville : Haute-Goulaine
- Code postal : 44115
- Annonce créée le 16/04/2026





