Vente Appartement 44350, Guerande france 173 000 €
Descriptif du bien
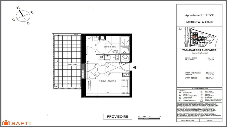
À 15 mn à pied des remparts dans une future résidence moderne et sécurisée, nous vous proposons un STUDIO de 26,34 m² au 2ème et dernier étage avec ASCENSEUR comprenant : une pièce de vie de 19 m² avec coin cuisine, le tout s'ouvrant sur une belle TERRASSE exposée ouest de 15 m², une salle d'eau avec wc. Un parking privatif complète ce bien. Local à vélos commun. Disponibilité prévisionnelle 2T2027. Faibles charges estimées à 540 ¤ / an. Plans, informations et rendez-vous sur demande. Photos de synthèse non contractuelles, illustrations d'ambiance. Les plus : frais de notaire réduits, résidence aux normes RE 2020 BBC, bon investissement locatif. Le bien comprend 0 lot, et il est situé dans une copropriété de 0 lot (il n'y a pas de charges courantes liées à la copropriété et le syndicat des copropriétaires ne fait pas l'objet d'une procédure citée à l'article L. 721-1 du code de la construction et de l'habitation).Les informations sur les risques auxquels ce bien est exposé sont disponibles sur le site Géorisques : www.georisques.gouv.frPrix de vente : 173 000 ¤Honoraires charge vendeurContactez votre conseiller SAFTI : Christine HAMON, Tél. : 06 89 18 49 27, E-mail : christine.hamon@safti.fr - EI - Agent commercial immatriculé au RSAC de SAINT-NAZAIRE sous le numéro 822 734 802.Informations LOI ALUR : Soumis au régime de copropriété. Honoraires charge vendeur. (gedeon_26118_32162489)
- Type de bien : Appartement
- Surface : 37 m²
- Localisation : France - pays-de-la-loire - Loire Atlantique
- Ville : Guerande
- Code postal : 44350
- Annonce mise à jour le 12/03/2026



