Vente Appartement 85800, Givrand france 199 000 €
Descriptif du bien
Iad France - Maryse Bonny (07 71 66 73 30) vous propose : À deux pas de la mer - T2 neuf avec Jardin et terrasse - Cadre verdoyant et sécurisé
Au cOEur d'un écrin de verdure, dans un environnement calme et résidentiel, découvrez ce T2 neuf en VEFA situé au sein d'une résidence sécurisée, pensée pour le bien-être au quotidien.
Ici, la nature s'invite, tout en restant connectée aux commerces de proximité et aux services essentiels, accessibles facilement à pied ou à vélo. Et surtout... la mer à quelques minutes seulement.
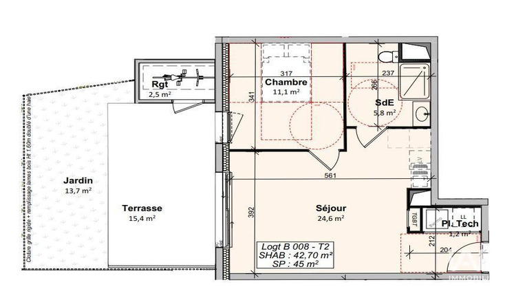
Ce logement développe une surface habitable d'environ 43 m² environ, avec une conception fonctionnelle et équilibrée :
Un séjour lumineux avec cuisine ouverte, offrant un bel espace de vie, Une chambre confortable, Une salle d'eau moderne, WC séparés, Un cellier pratique pour le rangement du quotidien, Un jardin et une terrasse, un local vélo et deux places de stationnements privatifs.
La résidence est sécurisée par digicode, pensée pour une tranquillité d'esprit totale, avec des prestations conformes aux normes environnementales RE 2020 + NF Habitat, garantissant confort thermique, performance énergétique et qualité acoustique.
Les + à retenir : Environnement naturel et apaisant, Résidence sécurisée, Logement neuf, sans travaux, Frais de notaire réduits, Éligible, selon profil, aux dispositifs d'aide de l'État (primo-accédants, investisseurs...). Un bien idéal pour habiter ou investir.
Accompagnement sur mesure, de la projection à la livraison, avec une lecture claire du programme, des aides possibles et des enjeux patrimoniaux.
Honoraires d'agence à la charge du vendeur. Bien non soumis au DPE. Les informations sur les risques auxquels ce bien est exposé sont disponibles sur le site Géorisques : www.georisques.gouv.fr. La présente annonce immobilière a été rédigée sous la responsabilité éditoriale de Mlle Maryse Bonny EI (ID 86268), mandataire indépendant en immobilier (sans détention de fonds), agent commercial de la SAS I@D France immatriculé au RSAC de LA ROCHE SUR YON sous le numéro 939986485, titulaire de la carte de démarchage immobilier pour le compte de la société I@D France SAS.
Retrouvez tous nos biens sur notre site internet. www.iadfrance.fr.Informations LOI ALUR : Honoraires charge vendeur. (gedeon_6727_32526895)
- Type de bien : Appartement
- Surface : 43 m²
- Localisation : France - pays-de-la-loire - Vendée
- Ville : Givrand
- Code postal : 85800
- Annonce créée le 16/04/2026




