Vente Appartement 85800, Givrand france 220 000 €
Descriptif du bien
Iad France - Maryse Bonny (07 71 66 73 30) vous propose : Un T2 neuf avec jardin et terrasse, au rez-de-chaussée, au cOEur d'un cadre naturel privilégié
Implanté dans un écrin de verdure, ce T2 neuf offre un cadre de vie calme, serein et équilibré, à deux pas de la mer et à proximité immédiate des commerces. Un environnement pensé pour le bien-être, où la nature occupe une place centrale sans renoncer à la praticité du quotidien.
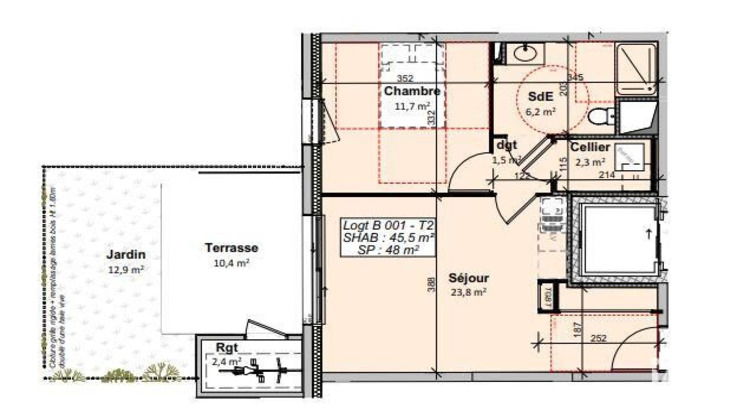
Le logement s'organise autour d'un séjour lumineux, ouvert sur une terrasse prolongée par un jardin privatif, Une configuration idéale pour profiter de l'extérieur en toute intimité.
La partie nuit se compose d'une chambre confortable, d'une salle d'eau fonctionnelle, d'un cellier et de rangements optimisés, offrant une lecture fluide et rationnelle des volumes.
Résidence sécurisée
Environnement résidentiel et paysager
Jardin et terrasse privatifs
Deux places de stationnement privatives
Construction neuve - normes RE 2020 + NF
Frais de notaire réduits
Aides de l'État possibles selon profil (primo-accédants, investisseurs)
Un logement aussi pertinent pour un premier achat que pour un investissement patrimonial raisonné, dans un secteur recherché du littoral vendéen.
Un accompagnement sur-mesure, de la découverte du programme jusqu'à la remise des clés, avec un interlocuteur unique à chaque étape de votre projet.
Honoraires d'agence à la charge du vendeur. Bien non soumis au DPE. Les informations sur les risques auxquels ce bien est exposé sont disponibles sur le site Géorisques : www.georisques.gouv.fr. La présente annonce immobilière a été rédigée sous la responsabilité éditoriale de Mlle Maryse Bonny EI (ID 86268), mandataire indépendant en immobilier (sans détention de fonds), agent commercial de la SAS I@D France immatriculé au RSAC de LA ROCHE SUR YON sous le numéro 939986485, titulaire de la carte de démarchage immobilier pour le compte de la société I@D France SAS.
Retrouvez tous nos biens sur notre site internet. www.iadfrance.fr.Informations LOI ALUR : Honoraires charge vendeur. (gedeon_6727_32526888)
- Type de bien : Appartement
- Surface : 46 m²
- Localisation : France - pays-de-la-loire - Vendée
- Ville : Givrand
- Code postal : 85800
- Annonce créée le 16/04/2026




