Vente Appartement 85800, Givrand france 289 000 €
Descriptif du bien
Iad France - Maryse Bonny (07 71 66 73 30) vous propose : ? À vendre - Appartement T3 avec balcon - Résidence à taille humaine - Givrand
Vous recherchez un lieu de vie alliant calme, confort et proximité immédiate du littoral ?
Cet appartement T3 en VEFA, situé au sein d'une résidence à taille humaine, saura vous séduire par son équilibre entre fonctionnalité et douceur de vivre.
Implanté dans un écrin de verdure, au calme, avec une présence mesurée de commerces de proximité, le logement bénéficie d'un emplacement privilégié, à deux pas de la mer, idéal pour un quotidien apaisé ou un pied-à-terre sur la côte vendéenne.
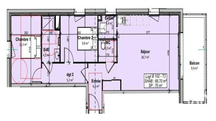
Un intérieur pensé pour votre confort, D'une surface habitable d'environ 68,7 m² environ, l'appartement se compose de :
une entrée avec dégagement, apportant une vraie séparation des espaces,
une pièce de vie lumineuse de plus de 26 m² environ, ouvrant sur un balcon d'environ 10 m² environ, parfait pour vos moments de détente,
deux chambres confortables, bien proportionnées,
une salle d'eau fonctionnelle, des WC indépendants, un cellier, véritable atout de rangement au quotidien.
Résidence sécurisée - Parking fermé et sécurisé par un portail coulissant électrique - Deux places de stationnement privatives incluses
Construction répondant aux normes environnementales RE 2020 + NF Habitat - confort thermique et acoustique optimisé.
Logement économe, pensé pour le long terme
Frais de notaire réduits, Possibilité d'aides de l'État, selon votre situation (primo-accédants notamment)
Un accompagnement sur-mesure, de la découverte du programme jusqu'à la remise des clés, avec un interlocuteur unique à chaque étape de votre projet.
Un appartement idéal pour vous projeter sereinement, dans un environnement naturel, sécurisé et proche de l'océan, au sein d'une résidence confidentielle.
Honoraires d'agence à la charge du vendeur. Bien non soumis au DPE. Les informations sur les risques auxquels ce bien est exposé sont disponibles sur le site Géorisques : www.georisques.gouv.fr. La présente annonce immobilière a été rédigée sous la responsabilité éditoriale de Mlle Maryse Bonny EI (ID 86268), mandataire indépendant en immobilier (sans détention de fonds), agent commercial de la SAS I@D France immatriculé au RSAC de LA ROCHE SUR YON sous le numéro 939986485, titulaire de la carte de démarchage immobilier pour le compte de la société I@D France SAS.
Retrouvez tous nos biens sur notre site internet. www.iadfrance.fr.
Informations LOI ALUR :
Honoraires charge vendeur. (gedeon_6727_32526897)
- Type de bien : Appartement
- Surface : 69 m²
- Localisation : France - pays-de-la-loire - Vendée
- Ville : Givrand
- Code postal : 85800
- Annonce créée le 12/02/2026




