Vente Appartement 85800, Givrand france 275 000 €
Descriptif du bien
Iad France - Maryse Bonny (07 71 66 73 30) vous propose : Pensée pour un quotidien fluide et confortable, ce logement neuf situé sur les hauteurs de Givrand offre un cadre de vie serein, à proximité directe des stations balnéaires vendéennes.
Egalement connecté aux services essentiels, comme les écoles et les commerces de proximité. L'ensemble accessible à pied ou à vélo.
Résidence au pied de la Vélodyssée, la plus longue véloroute aménagée en France.
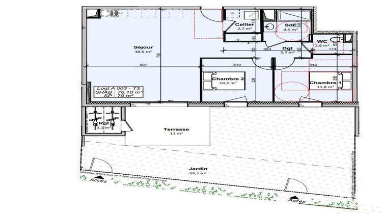
L'appartement de type T3, dispose d'un séjour de 38 m² environ, de deux chambres, d'une salle d'eau, d'un cellier et d'un espace extérieur agréable comprenant terrasse, jardin privatif et local vélo.
Les prestations incluent une résidence sécurisée, un parking fermé, 2 places de stationnement privatives, un local vélo individuel, et un garage en option.
Construction conforme aux normes RE 2020 et NF Habitat, assurant un confort durable et des performances énergétiques optimisées.
Livraison prévisionnelle en décembre 2028.
Honoraires d'agence à la charge du vendeur. Bien non soumis au DPE. Les informations sur les risques auxquels ce bien est exposé sont disponibles sur le site Géorisques : www.georisques.gouv.fr. La présente annonce immobilière a été rédigée sous la responsabilité éditoriale de Mlle Maryse Bonny EI (ID 86268), mandataire indépendant en immobilier (sans détention de fonds), agent commercial de la SAS I@D France immatriculé au RSAC de LA ROCHE SUR YON sous le numéro 939986485, titulaire de la carte de démarchage immobilier pour le compte de la société I@D France SAS.
Retrouvez tous nos biens sur notre site internet. www.iadfrance.fr.
Informations LOI ALUR :
Honoraires charge vendeur. (gedeon_6727_32514572)
- Type de bien : Appartement
- Surface : 76 m²
- Localisation : France - pays-de-la-loire - Vendée
- Ville : Givrand
- Code postal : 85800
- Annonce créée le 12/02/2026





