Vente Appartement 69700, Givors france 380 990 €
Descriptif du bien
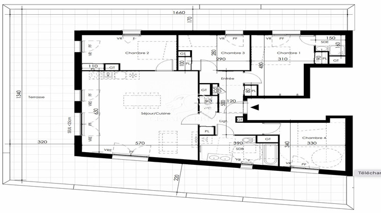
Découvrez ce superbe appartement familial de 5 pièces, idéalement situé au coeur de Givors, à deux pas du Parc des Sports et à seulement 25 minutes de Lyon.
? Les atouts du logement :
Surface généreuse et fonctionnelle : un grand séjour lumineux prolongé par une cuisine conviviale.
4 chambres dont une suite parentale avec salle d'eau.
Une salle de bains, une salle d'eau 2 WC séparés, buanderie et rangements
Balcon / espace extérieur pour profiter des beaux jours.
Stationnement privatif inclus. x2
? Un cadre de vie privilégié :
Environnement verdoyant avec espaces arborés et cheminements piétons.
Proximité immédiate des équipements sportifs, commerces, écoles et transports.
Accès rapide à l'A47 et à la gare de Givors Canal (Lyon Perrache à moins de 10 min en train).
? Confort & prestations :
Volets roulants, double vitrage, parquet stratifié dans les pièces de vie.
Chauffage collectif avec régulation individuelle.
Résidence sécurisée avec vidéophone.
? Adresse : Avenue Youri Gagarine / Rue Léo Lagrange 69700 Givors
? Prix : 380990
Mentions légales:
Référence de l'annonce: NDA-7861
Nicolas Dambra Agent commercial (EI) RSAC n°488126590
nicolas.dambra@cesaretbrutus.com / 0651793730
Mandataire pour le compte de César et Brutus Immobilier
Honoraires à la charge du vendeur.
Honoraires à la charge du vendeur. Dans une copropriété de 26 lots. Aucune procédure n'est en cours. Classe énergie A, Classe climat A Montant estimé des dépenses annuelles d'énergie pour un usage standard : entre 1200.00 et 1200.00 sur les années 2021, 2022 et 2023 (abonnements compris). Les informations sur les risques auxquels ce bien est exposé sont disponibles sur le site Géorisques : georisques.gouv.fr. Ce bien vous est proposé par un agent commercial (Entreprise individuelle).
Votre conseiller CESAR ET BRUTUS : Nicolas D'AMBRA
Agent commercial (Entreprise individuelle)
- Type de bien : Appartement
- DPE : A -< 51 kWh/².an
- GES : A -< 6 kg eq CO2/².an
- Surface : 125 m²
- Localisation : France - Auvergne-Rhône-Alpes - Rhône
- Ville : Givors
- Code postal : 69700
- Annonce créée le 24/10/2025

