Vente Appartement 93220, Gagny france 185 300 €
Descriptif du bien
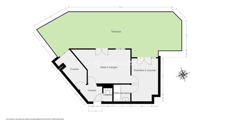
Appartement T2 avec Jardin 55m²
Découvrez cet appartement T2 Vendu Occupé dans un immeuble construit en 2010, offrant un cadre de vie idéal pour ceux qui recherchent à la fois confort et tranquillité. Situé au RDC + jardin 55m², cet appartement de 43,61 m² habitables et 45 m² au sol, baigne dans une lumière naturelle grâce à ses ouvertures en PVC et double vitrage.
L'appartement se compose d'un spacieux séjour de 17 m², parfait pour recevoir vos invités ou simplement vous détendre après une longue journée. La cuisine, indépendante et aménagée, est équipée de tout le nécessaire pour les amateurs de cuisine. Possibilité cuisine ouverte. Une chambre confortable et une salle de bains complète avec WC indépendant assurent votre intimité et votre bien-être.
L'état intérieur de l'appartement est à rénover. Les parties communes, sont en bon état.
Le chauffage individuel au gaz assure une gestion optimale de votre confort thermique, tandis que la hauteur sous plafond de 2,50 m apporte une sensation d'espace et de luminosité. Expo Ouest.
Un emplacement de parking intérieur vous garantit la sécurité de votre véhicule.
À proximité, vous trouverez plusieurs commodités pratiques. À 5 minutes à pied, vous avez accès à plusieurs commerces d'alimentation générale, restaurants, médecins généralistes, ainsi qu'à une crèche, une maternelle et une école élémentaire. À 10 minutes à pied, vous pouvez rejoindre un tramway, une crèche, une maternelle, une école élémentaire, ainsi qu'un parc et jardin. À 5 minutes en voiture, vous pouvez rejoindre plusieurs collèges, ainsi qu'un parc et jardin. À 10 minutes en voiture, vous pouvez rejoindre un hôpital et un tramway.
Honoraires inclus de 5.28% TTC à la charge de l'acquéreur. Prix hors honoraires 176 000 . Dans une copropriété de 50 lots. Aucune procédure n'est en cours. Classe énergie C, Classe climat C Montant estimé des dépenses annuelles d'énergie pour un usage standard : entre 650.00 et 930.00 sur les années 2021, 2022 et 2023 (abonnements compris). Les informations sur les risques auxquels ce bien est exposé sont disponibles sur le site Géorisques : georisques.gouv.fr.
- Type de bien : Appartement
- DPE : C - 91 à 150 kWh/².an
- GES : C - 11 à 20 kg eq CO2/².an
- Surface : 43 m²
- Localisation : France - ile-de-france - Seine Saint Denis
- Ville : Gagny
- Code postal : 93220
- Annonce créée le 22/08/2025





