Vente Appartement 34110, FRONTIGNAN france 362 000 €
Descriptif du bien
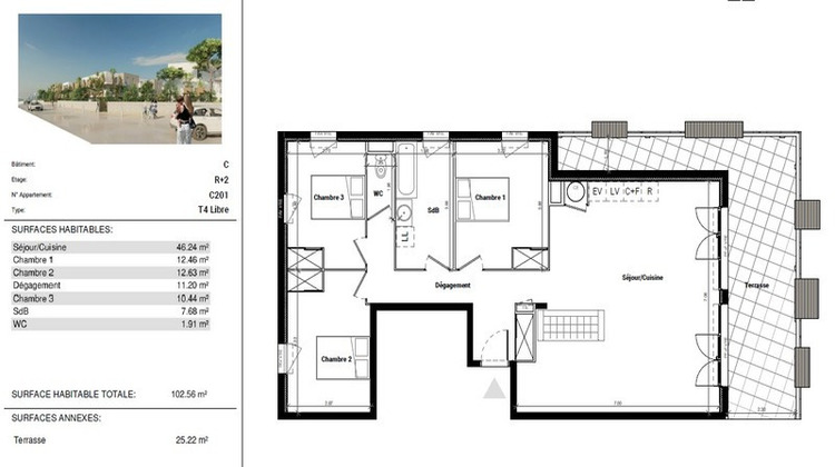
Un appartement aux volumes généreux, pensé pour offrir un cadre de vie confortable et fonctionnel au quotidien. Ce T4 de 102,56 m² propose une organisation fluide des espaces, avec une pièce de vie spacieuse et lumineuse, conçue comme le cœur de l'appartement. Elle s'ouvre directement sur une terrasse de 25 m², permettant de profiter pleinement d'un espace extérieur agréable, idéal pour les repas, les moments de détente ou recevoir. Cette ouverture vers l'extérieur apporte une réelle sensation d'espace et prolonge naturellement les volumes intérieurs. L'agencement intérieur a été pensé pour répondre aux besoins d'une vie de famille. L'espace nuit, bien distinct, se compose de trois chambres, permettant à chacun de disposer de son propre espace tout en conservant une organisation pratique et fonctionnelle. L'ensemble offre un cadre de vie confortable, facile à aménager et à adapter selon les besoins : chambres, bureau, ou espace polyvalent. La résidence, d'architecture contemporaine, s'inscrit dans un environnement pratique et bien desservi. Les transports en commun sont accessibles au pied de la résidence, facilitant les déplacements du quotidien. Les commerces et services sont rapidement accessibles. Située entre les étangs et le massif de la Gardiole, elle offre un cadre de vie agréable, équilibré entre accessibilité et environnement. Les prestations ont été pensées pour répondre aux attentes actuelles en matière de confort : luminosité, agencement optimisé et présence d'un espace extérieur pour chaque logement. Un stationnement complète ce bien, apportant une solution pratique pour le quotidien. Surface : 102,56 m² Terrasse : 25 m² Stationnement inclus Résidence contemporaine Transports au pied de la résidence Accès rapide aux commodités Un appartement équilibré, idéal pour une résidence principale confortable. Nombre de lots de la copropriété : 200, Montant moyen annuel de la quote-part de charges (budget prévisionnel) : 1300€ soit 108€ par mois. Les honoraires sont à la charge du vendeur. Les informations sur les risques auxquels ce bien est exposé sont disponibles sur le site Géorisques : www. georisques. gouv. fr. Réseau Immobilier CAPIFRANCE - Votre agent commercial (RSAC N°811 988 211 - Greffe de MONTPELLIER) Marion BENIERE Entrepreneur Individuel à Responsabilité Limitée 0782118731 - Réf.949980

