Vente Appartement 34110, FRONTIGNAN france 347 000 €
Descriptif du bien
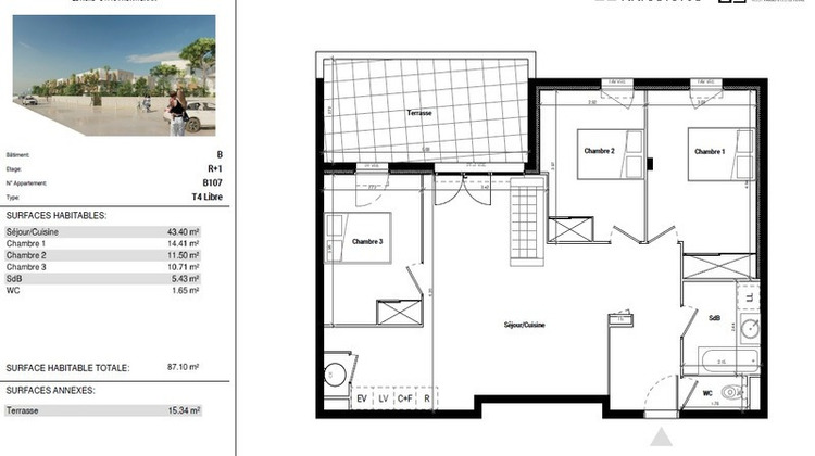
Un appartement fonctionnel et agréable, idéal pour un quotidien simple et confortable. Ce T4 de 87 m² propose une organisation optimisée des espaces, avec une pièce de vie conviviale et lumineuse, conçue pour répondre aux usages du quotidien. Celle-ci s'ouvre sur une terrasse, offrant un espace extérieur appréciable pour les repas en plein air, les moments de détente ou simplement profiter des beaux jours. L'agencement intérieur permet de distinguer clairement les espaces de vie et les espaces nuit. La partie nuit se compose de trois chambres, permettant d'accueillir une famille ou de disposer de pièces supplémentaires pour un bureau ou une chambre d'amis. L'ensemble offre un cadre de vie pratique et fonctionnel, facile à aménager et à personnaliser selon les besoins. La résidence, d'architecture contemporaine, s'inscrit dans un environnement bien desservi. Les transports en commun sont accessibles au pied de la résidence, facilitant les déplacements au quotidien, et les commerces ainsi que les services sont rapidement accessibles. Située entre les étangs et le massif de la Gardiole, la résidence bénéficie d'un cadre de vie agréable, combinant accessibilité et environnement. Les prestations ont été pensées pour répondre aux attentes actuelles en matière de confort et de qualité de vie : agencement optimisé, luminosité, et espaces extérieurs pour chaque logement. Un garage complète ce bien, apportant une solution de stationnement sécurisée et pratique. Surface : 87 m² Terrasse Garage inclus Résidence contemporaine Transports au pied de la résidence Accès rapide aux commodités Un appartement fonctionnel, idéal pour une résidence principale ou un premier achat. Nombre de lots de la copropriété : 200, Montant moyen annuel de la quote-part de charges (budget prévisionnel) : 1300€ soit 108€ par mois. Les honoraires sont à la charge du vendeur. Les informations sur les risques auxquels ce bien est exposé sont disponibles sur le site Géorisques : www. georisques. gouv. fr. Réseau Immobilier CAPIFRANCE - Votre agent commercial (RSAC N°811 988 211 - Greffe de MONTPELLIER) Marion BENIERE Entrepreneur Individuel à Responsabilité Limitée 0782118731 - Réf.949991





