Vente Appartement 94120, FONTENAY-SOUS-BOIS france 520 000 €
Descriptif du bien
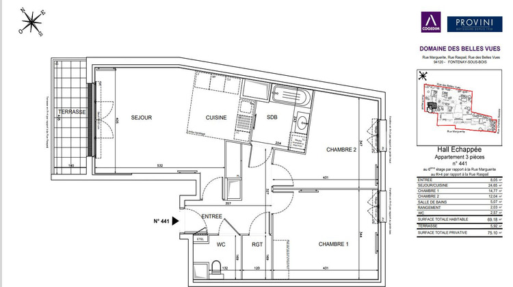
Spécialiste de Fontenay , BSI vous propose : *** PLEIN COEUR DU VILLAGE *** PRODUIT UNIQUE et RARE ! Découvrez ce SUPERBE appartement F3 avec TERRASSE situé AU 6 EME ET DERNIER ETAGE AVEC ASCENSEUR d'un immeuble neuf ( Année 2024 ) . Il offre de belles prestations et une vue dégagée . A proximité directe du RER A et du BOIS ( 9 min à pieds) et au pieds des écoles du VILLAGE et des commerces . Cet appartement est un véritable havre de paix et de confort ! Profitez d'un séjour lumineux avec cuisine ouverte aménagée exposé plein OUEST s'ouvrant sur TERRASSE DE 6 M² , grande entrée avec dressing , 2 grandes chambres ( environ 15 M² et 12 M² ) , salle de bains , WC indépendant. LE "+" : une place de parking couverte . IDEAL FAMILLE !
- Type de bien : Appartement
- DPE : B - 51 à 90 kWh/².an
- GES : B - 6 à 10 kg eq CO2/².an
- Surface : 70 m²
- Localisation : France - ile-de-france - Val de Marne
- Ville : FONTENAY-SOUS-BOIS
- Code postal : 94120
- Annonce mise à jour le 19/11/2024


