Vente Appartement 33270, Floirac france 399 900 €
Descriptif du bien
AUX PORTES DE BORDEAUX : DU VOLUME, UNE TERRASSE, 2 PARKINGS, ASCENSEUR
Situé à proximité du futur pont Simone Veil, cette localisation mêle dynamisme urbain et sérénité par la proximité d'une emblématique salle de concert et de ses nombreux espaces verts. Cette résidence à est résolument une belle adresse au coeur d'un quartier d'avenir où les résidents profiteront à la fois de la connexion rapide à la ville mais aussi du charme bucolique des nombreux parcs et espaces propices à la détente.
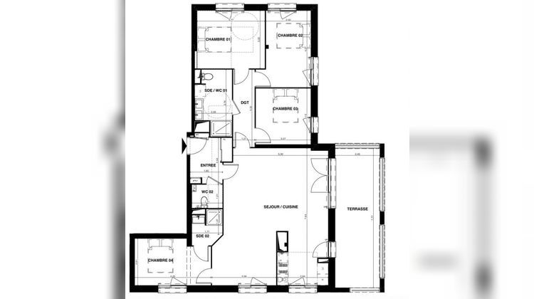
L'appartement avec ses 3 expositions, est baigné de lumière. Vous trouverez une entrée avec placard et WC Indépendant. Ensuite, vous accèderez à une magnifique pièce de vie (exposée sud et est) de 45m2 avec son espace cuisine, le tout prolongé par une terrasse de 19m2. Coté nuit, une suite parentale avec sa salle d'eau, ainsi que trois chambres volumineuses ainsi qu'une salle d'eau double vasque avec WC et espace pour lave linge.
Deux places de parking sécurisées complètent cet appartement.
- Ascenseur
- TVA réduit 5,5%
- TVA 20% : 456 000
- Frais de Notaire réduit
- PTZ possible
- Garanties
- RT 2012
- Exonération de taxe Foncière
- ...
AUX PORTES DE BORDEAUX : DU VOLUME, UNE TERRASSE, 2 PARKINGS, ASCENSEUR
Honoraires à la charge du vendeur. Dans une copropriété de 93 lots. Aucune procédure n'est en cours. DPE manquant Ce bien vous est proposé par un agent commercial. Nos honoraires : https://files.netty.immo/file/rhpatri/184/F8000/bareme_des_honoraires_2_1.pdf
Votre conseiller RH Patrimoine : Maxime HERVE - Tél. 0647060290
Agent commercial (Entreprise individuelle)
RSAC 133095555 J
RCP 13309666 J
- Type de bien : Appartement
- Surface : 110 m²
- Localisation : France - Nouvelle-Aquitaine - Gironde
- Ville : Floirac
- Code postal : 33270
- Annonce créée le 12/12/2023





