Vente Appartement 11510, Fitou france 144 000 €
Descriptif du bien
Iad France - Deborah Borie vous propose : DUPLEX DE CHARME AVEC PISCINE ET ACCÈS DIRECT AUX ÉTANGS À FITOU
Découvrez ce charmant appartement en duplex situé au Domaine de Pedros à Port Fitou, offrant un cadre de vie unique entre terre et mer. Niché dans une résidence calme et sécurisée, cet appartement offre tout le confort moderne dans un cadre idyllique.
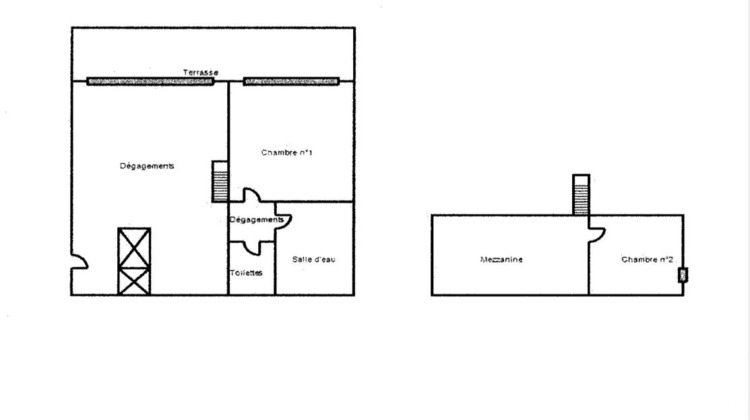
Au Rez de chaussée, vous découvrirez une entrée chaleureuse menant à une cuisine équipée de type kitchenette, un espace séjour lumineux par ses baies vitrée s'ouvrant sur la Loggia couverte, une chambre avec baies vitrées sur loggia comprenant un placard de rangement, d'une une salle d'eau rénovée et un WC séparée.
À l'étage, une mezzanine avec placards et une seconde chambre, parfaite pour offrir un espace privé et cosy. L'appartement bénéficie d'une exposition est-sud, offrant une luminosité naturelle tout au long de la journée.
Cet appartement duplex est équipé de deux climatisations réversibles pour votre confort au quotidien.
Sa loggia couverte offre une vue imprenable sur la pinède et une partie de l'étang offrant calme et sérénité.
Profitez également des nombreux équipements de la résidence, tels que deux piscines privée, idéale pour se rafraîchir lors des journées ensoleillées. Pour les amateurs de sports, un terrain de tennis se trouve à seulement 100 mètres, ponton d'amarrage sur l'étang, aires de jeux pour les enfants et de nombreux avantages facilitant le quotidien.
Ne manquez pas l'opportunité de résider dans ce duplex d'exception, alliant confort moderne, charme et sérénité. Contactez-nous pour planifier une visite et découvrir ce bijou immobilier à Fitou.
La presente annonce immobiliere vise 2 lots situés dans une copropriété de 290 lots au total et ne faisant l'objet d'aucune procédure en cours citée à l'article L. 721-1 du code de la construction et de l'habitation. Montant moyen mensuel de charges déclaré par le vendeur : 134.75¤ par mois (soit 1617 ¤ annuel). Honoraires d'agence à la charge du vendeur.
Information d'affichage énergétique sur ce bien : classe ENERGIE C indice 151 et classe CLIMAT A indice 4. Les informations sur les risques auxquels ce bien est exposé, y compris l'obligation légale de débroussaillement, sont disponibles sur le site Géorisques : http://www.georisques.gouv.fr.
La présente annonce immobilière a été rédigée sous la responsabilité éditoriale de Mme Deborah Borie mandataire indépendant en immobilier (sans détention de fonds), agent commercial de la SAS I@D France immatriculé au RSAC de NARBONNE sous le numéro 928043595, titulaire de la carte de démarchage immobilier pour le compte de la société I@D France SAS.Informations LOI ALUR : Soumis au régime de copropriété. Nombre de lots : 290. Quote part annuelle(moyenne) : 1617 euros. Honoraires charge vendeur. (gedeon_6727_31759884)





