Vente Appartement 42110, Feurs france 185 000 €
Descriptif du bien
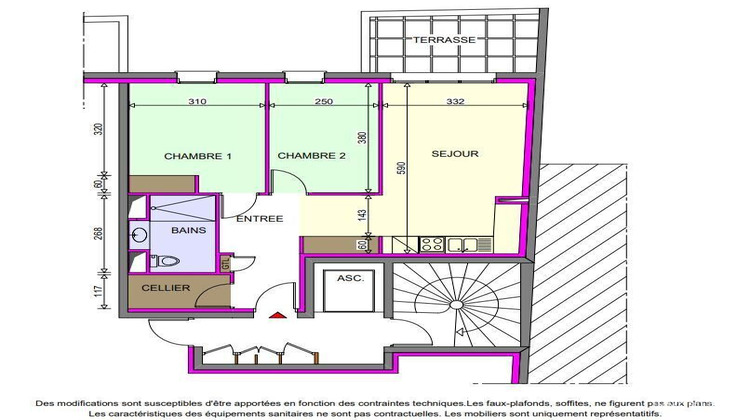
Iad France - Ludivine Duval (06 10 33 48 95) vous propose : Superbe appartement neuf à Feurs, T3, en plein centre-ville ! Cet appartement de standing, actuellement en cours de réalisation, est situé au 4ème étage d'une résidence moderne, offrant une exposition idéale à l'OUEST. Il se compose d'une pièce de vie spacieuse et lumineuse, d'une cuisine à aménager selon vos goûts, de deux chambres confortables, d'une salle d'eau moderne, et d'un WC indépendant. Terrasse de 7,5 m² environ. Cave privative au rez-de-chaussée de la résidence pour un espace de rangement supplémentaire. Les frais de notaire sont réduits, ce qui représente un avantage considérable. Saisissez cette opportunité unique d'acquérir un appartement neuf dans un emplacement de choix à Feurs ! Honoraires d'agence à la charge du vendeur. Bien non soumis au DPE. Les informations sur les risques auxquels ce bien est exposé sont disponibles sur le site Géorisques : www.georisques.gouv.fr. La présente annonce immobilière a été rédigée sous la responsabilité éditoriale de Mlle Ludivine Duval EI (ID 47874), mandataire indépendant en immobilier (sans détention de fonds), agent commercial de la SAS I@D France immatriculé au RSAC de Roanne sous le numéro 888871571, titulaire de la carte de démarchage immobilier pour le compte de la société I@D France SAS. Retrouvez tous nos biens sur notre site internet. www.iadfrance.fr.Informations LOI ALUR : Honoraires charge vendeur. (gedeon_6727_32162893)
- Type de bien : Appartement
- Surface : 58 m²
- Localisation : France - Auvergne-Rhône-Alpes - Loire
- Ville : Feurs
- Code postal : 42110
- Annonce créée le 05/03/2026





