Vente Appartement 74210, FAVERGES france 279 000 €
Descriptif du bien
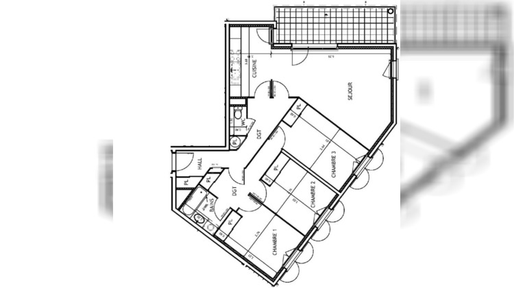
Ce nouveau T4 ( étage élevé ) est désormais disponible .Sa configuration est parfaite. Centre ville à 3 minutes à pied. Très bien situé dans un environnement très calme à seulement quelques minutes du centre ville. Au 2ème étage sur 3 , vous profitez d'une vue sur les montagnes et d'un parking public gratuit devant la résidence. Indice énergétique favorable. Avec une exposition SUD OUEST il est très lumineux. La cuisine et le séjour disposent d'un accès à la terrasse. Les 3 chambres sont elles orientées au Nord. En réunissant 2 chambres vous obtiendrez une Master chambre de 20 m2 avec 2 fenêtres Dans cette résidence sécurisée ,votre appartement est en parfait état et très fonctionnel. Vous profitez d'une pièce de vie de + de 23 m2 ouverte sur la terrasse. Pas de travaux à prévoir à l'exception de l'aménagement de le cuisine. Vous disposez d'un garage privatif en sous-sol et d'un parking gratuit devant la résidence. Ce bien est idéal si vous privilégiez la vue sur les montagne et un étage élevé. Vous accèderez au centre ville en - de 5 mn à pied. Les investisseurs ainsi que les personnes qui souhaitent une résidence secondaire à proximité du Lac (10 mn) bénéficieront des mêmes avantages. Points forts garage de 15 m2 Certains volets roulants sont motorisés Très lumineux Environnement calme Exposition parfaite Nombre de lots de la copropriété : 46, Montant moyen annuel de la quote-part de charges (budget prévisionnel)(140) : 1680€ soit 140€ par mois. Les honoraires sont à la charge du vendeur. Les informations sur les risques auxquels ce bien est exposé sont disponibles sur le site Géorisques : www. georisques. gouv. fr. Réseau Immobilier CAPIFRANCE - Votre agent commercial (RSAC N°420 944 019 - Greffe de LABASTIDE VILLEFRANCHE) Fabrice BAILLY Entrepreneur Individuel à Responsabilité Limitée 06 80 83 30 29 - Réf.926830
- Type de bien : Appartement
- DPE : C - 91 à 150 kWh/².an
- GES : C - 11 à 20 kg eq CO2/².an
- Surface : 85 m²
- Localisation : France - Auvergne-Rhône-Alpes - Savoie (Haute)
- Ville : FAVERGES
- Code postal : 74210
- Annonce mise à jour le 31/01/2026


