Vente Appartement 74500, EVIAN LES BAINS france 293 000 €
Descriptif du bien
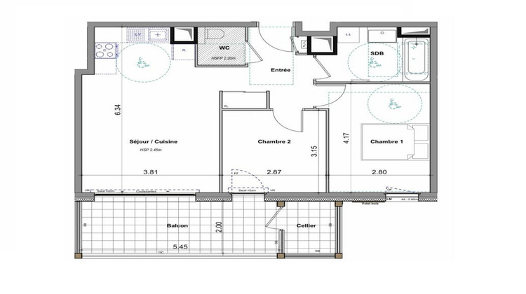
Situé à moins de 15 minutes d'EVIAN, au calme de la commune de FETERNES, au deuxième étage avec ascenseur d'un ensemble immobilier à taille humaine, entouré de terrains agricoles, à proximité de l'école, des transports et d'un centre médical. Appartement de type 3 de plus de 56m², avec balcon de 10 m² et cellier. Il est composé d'un hall d'entrée avec rangements, une pièce de vie avec espace cuisine ouvert, le tout donnant sur le balcon de plus de 10 m² avec cellier, deux chambres, une salle de bain et un WC séparé. Un stationnement extérieur et un stationnement extérieur couvert sont inclus dans le prix de vente. Frais de notaire offerts aux 5 premières réservations. Lot B 205 Prix de vente 293.000 euros Frais d'agence inclus, honoraires à la charge du vendeur. Pour visiter et vous accompagner dans votre projet, contactez Ingrid VEDEL, au 0644120744 ou, par courriel à i.vedel@proprietes-privees.com. Selon l'article L.561.5 du Code Monétaire et Financier, pour l'organisation de la visite, la présentation d'une pièce d'identité vous sera demandée. Cette présente annonce a été rédigée sous la responsabilité éditoriale de Ingrid VEDEL agissant sous le statut d'agent commercial immatriculé au RSAC 985032598 auprès de SAS PROPRIETES PRIVEES, au capital de 44 920 euros, ZAC LE CHÊNE FERRÉ - 44 ALLÉE DES CINQ CONTINENTS 44120 VERTOU; SIRET 487 624 777 00040, RCS Nantes. Carte Professionnelle Transactions sur immeubles et fonds de commerce (T) et Gestion immobilière (G) n°CPI 4401 2016 000 010 388 délivrée par la CCI Nantes - Saint Nazaire. Compte séquestre n°30932508467 BPA SAINT-SEBASTIEN-SUR-LOIRE (44230). Garantie GALIAN-SMABTP - 89 rue de la Boétie, 75008 Paris - n°28137 J pour 2 000 000 euros pour T et 120 000 euros pour G. Assurance responsabilité civile professionnelle par GALIAN-SMABTP n° de police 28137.J Mandat réf : 420823 - Le professionnel garantit et sécurise votre projet immobilier. Copropriété de 127 lots - dont 36 lots habitation. () nr Charges annuelles : 1500 euros. Ingrid VEDEL (EI) Agent Commercial - Numéro RSAC : 985032598 - . Les informations sur les risques auxquels ce bien est exposé sont disponibles sur le site Géorisques : www. georisques. gouv. fr
- Type de bien : Appartement
- Surface : 56 m²
- Localisation : France - Auvergne-Rhône-Alpes - Savoie (Haute)
- Ville : EVIAN LES BAINS
- Code postal : 74500
- Annonce créée le 20/09/2025





