Vente Appartement 11260, Espéraza france 43 460 €
Descriptif du bien
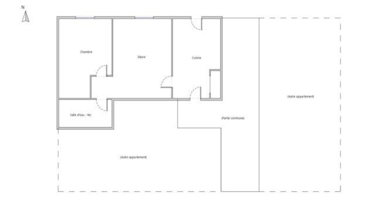
Appartement T2 déjà loué, situé au rez-de-chaussé d'un immeuble en copropriété d'un étage, au coeur d'Esperaza.
Le bien dispose d'une cuisine séparée, un séjour, une chambre et une salle d'eau avec wc.
Idéal pour un investisseur, le logement est actuellement loué 404.38 par mois.
Honoraires inclus de 6% TTC à la charge de l'acquéreur. Prix hors honoraires 41 000 . Dans une copropriété de 17 lots. Aucune procédure n'est en cours. Classe énergie C, Classe climat B Montant estimé des dépenses annuelles d'énergie pour un usage standard : entre 710.00 et 0 sur les années 2021, 2022 et 2023 (abonnements compris). Les informations sur les risques auxquels ce bien est exposé sont disponibles sur le site Géorisques : georisques.gouv.fr.
Carte pro. 1102022000000006
AC CPI11012022000000006


