Vente Appartement 11260, Espéraza france 39 220 €
Descriptif du bien
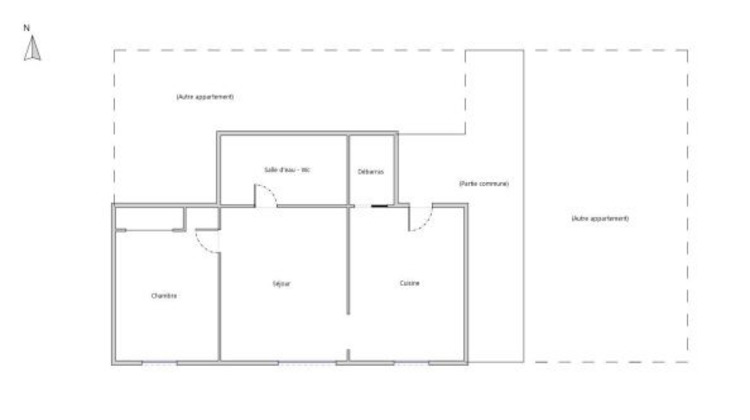
Appartement de type T2 implanté dans un immeuble d'un étage en copropriété, implanté sur la place de Verdun à ESPERAZA .
Au calme, cet appartement de plain-pied est composé d'une cuisine séparée, un séjour, une chambre, une salle d'eau avec wc.
Le bien est actuellement loué pour un loyer de 360.25. Quelques travaux pourraient améliorer l'habitabilité du logement. (Menuiseries simple-vitrage..)
Idéal investisseur.
Honoraires à la charge du vendeur. Dans une copropriété de 17 lots. Aucune procédure n'est en cours. Classe énergie C, Classe climat B Montant estimé des dépenses annuelles d'énergie pour un usage standard : entre 820.00 et 0 sur les années 2021, 2022 et 2023 (abonnements compris). Les informations sur les risques auxquels ce bien est exposé sont disponibles sur le site Géorisques : georisques.gouv.fr.
Carte pro. 1102022000000006
AC CPI11012022000000006

