Vente Appartement 91860, EPINAY SOUS SENART france 136 000 €
Descriptif du bien
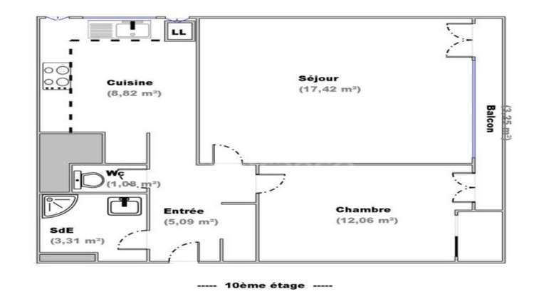
Distribution fonctionnelle pour cet appartement T2 de 49 m² avec un balcon de 3.25 m² et une cave en sous-sol. Au dixième étage : une entrée, une salle d'eau, un WC indépendant, un séjour de 18 m², une accueillante cuisine aménagée, une petite buanderie, une chambre de 12 m² avec placards intégrés et un balcon. Informations complémentaires : - Résidence bien entretenue, - 117.00 € de charges de copropriété comprenant l'eau chaude et le chauffage collectif, - Volets roulants électriques, - Fenêtres en PVC, - 2 ascenseurs, - Cave, - Place de parking libre. Vous êtes intéressés, vous avez des questions ? Je suis à votre service pour vous faire découvrir ce bien. Nombre de lots de la copropriété : 310, Montant moyen annuel de la quote-part de charges (budget prévisionnel)(Chauffage collectif) : 1400€ soit 116€ par mois. Les honoraires sont à la charge du vendeur. Les informations sur les risques auxquels ce bien est exposé sont disponibles sur le site Géorisques : www. georisques. gouv. fr. Réseau Immobilier CAPIFRANCE - Votre agent commercial (RSAC N°512 888 165 - Greffe de MELUN) Michel ASSELIE Entrepreneur Individuel 06 47 00 02 63 - Réf.946088
- Type de bien : Appartement
- DPE : E - 231 à 330 kWh/².an
- GES : C - 11 à 20 kg eq CO2/².an
- Surface : 49 m²
- Localisation : France - ile-de-france - Essonne
- Ville : EPINAY SOUS SENART
- Code postal : 91860
- Annonce créée le 21/03/2026





