Vente Appartement 12140, Entraygues-sur-Truyère france 36 000 €
Descriptif du bien
INVESTISSEMENT LOCATIF T2 Loué LMNP Entraygues-sur-Truyère
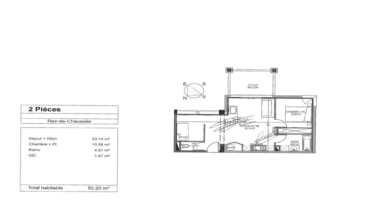
Appartement T2 d'environ 50,20 m² situé dans la résidence de tourisme Les Gorges de la Truyère à Entraygues-sur-Truyère.
Loué actuellement Loyer annuel HT : 2 719,24 / an soit 226,60 / mois Bail sécurisé jusqu'au 31/10/2030Rentabilité brute : 7,55%
Composition :
Séjour avec kitchenette équipée (réfrigérateur, plaque électrique, lave-vaisselle, hotte, micro-ondes, cafetière)
1 chambre
1 cabine
Salle de bain
WC
Terrasse
Possibilité d'occupation : 2 semaines hors juillet-août + remise de 10% à 20% sur les résidences Goélia et partenaires
Informations financières :
Loyer annuel HT : 2 719,24 / an soit 226,60 / mois
Charges de copropriété : 59,63 / mois
Taxe foncière : 411 / an
DPE : D
Points forts :
Loyers garantis même en cas de vacance ou d'impayés
Gestion complète par Goélia ? aucune contrainte de gestion
Avantages fiscaux liés au LMNP amortissable ? exonération d'impôt sur les revenus locatifs
Idéal pour investisseur recherchant un placement sécurisé et clé en main
Possibilité d'occupation : 2 semaines hors juillet-août + remise de 10% à 20% sur les résidences Goélia et partenaires
Honoraires à la charge du vendeur. Dans une copropriété de 62 lots. Aucune procédure n'est en cours. Classe énergie D, Classe climat B Montant moyen estimé des dépenses annuelles d'énergie pour un usage standard, établi à partir des prix de l'énergie de l'année 2026 : entre 1.00 et 1.00 . Les informations sur les risques auxquels ce bien est exposé sont disponibles sur le site Géorisques : georisques.gouv.fr.



