Vente Appartement 67550, Eckwersheim france 385 270 €
Descriptif du bien
NOUVEAU A ECKWERSHEIM
Idéalement situé au Nord de Strasbourg Eckwersheim est proche de tout :
Moins de 2 km de Vendenheim et sa zone commerciale
24 Km de Strasbourg
7 km de Brumath
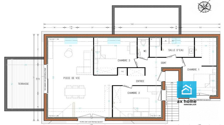
Nous vous proposons en 1er étage d'une Résidence de qualité ce très beau F4 de 96/104 m²
Il est composé, d'une belle pièce de vie de 40/42 m² ouvrant sur la large terrasse, de 3 chambres, d'une SDE et d'un toilettes.
Les PLUS :
Pompe à chaleur
Plancher chauffant
Terrasse 17m²
SDE équipée
WC suspendu
Matériaux de qualité au choix de l'acquéreur
N'hésitez pas contactez nous :
Axhome Immobilier :
- 104a Route de Saverne 67205 Oberhausbergen
- 33 Allée de l'Economie 67370 Wiwersheim Galerie au Jardin des Sens au dessus d'Esprit pain
www.axhome.immo
Les informations sur les risques auxquels ce bien est exposé sont disponibles sur le site Géorisques : www.georisques.gouv.fr.
DPE établit à réception du logement
Honoraires à la charge du vendeur. Dans une copropriété de 7 lots. Aucune procédure n'est en cours. Non soumis au DPE. Les informations sur les risques auxquels ce bien est exposé sont disponibles sur le site Géorisques : georisques.gouv.fr.
.
Ax'Home Immobilier - 2 agences de proximité pour mieux vous accompagner.
Oberhausbergen - 104A Route de Saverne (en face de Prowin)
Wiwersheim - 33 Allée de l'Economie (Galerie 'Au Jardin des Sens' au dessus d'Esprit Pain)
- Type de bien : Appartement
- Surface : 95 m²
- Localisation : France - Grand Est - Rhin (Bas)
- Ville : Eckwersheim
- Code postal : 67550
- Annonce créée le 19/09/2025



