Vente Appartement 14440, DOUVRES-LA-DELIVRANDE france 270 900 €
Descriptif du bien
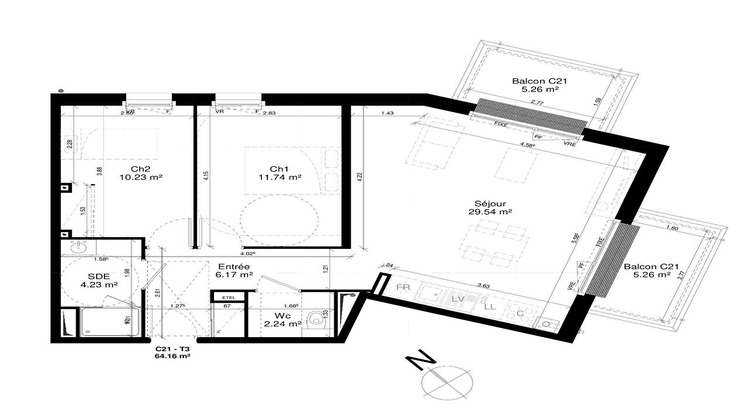
Le cabinet FOLLIOT vous propose dans un nouveau programme à Douvres la Délivrande ce magnifique appartement de 64.13m² avec deux BALCONS de 5.26m². Informations et réservation avec Pierrick Bourgoin - tel: O6-26-77-69-7I Comprenant : entrée avec placard, pièce de vie avec cuisine ouverte de 29m² donnant sur les balcons, deux chambres, salle d'eau, wc. FRAIS DE NOTAIRES REDUITS. livraison 2027. Le chauffage est assuré par des radiateurs au gaz. En plus, vous bénéficierez d'une place de stationnement extérieur. D'AUTRES LOTS SONT DISPONIBLES : tel: O6-26-77-69-7I La localisation est idéale, à proximité de plusieurs établissements scolaires tels que l'École primaire Marie Curie, le Lycée technologique privé Notre-Dame de Nazareth, et le Collège Clément Marot. Ne manquez pas cette opportunité, contactez l'agence FOLLIOT pour plus d'informations. Pierrick BOURGOIN (EI) Agent Commercial - Numéro RSAC : 481 745 107 - Caen.



