Vente Appartement 14440, DOUVRES-LA-DELIVRANDE france 387 900 €
Descriptif du bien
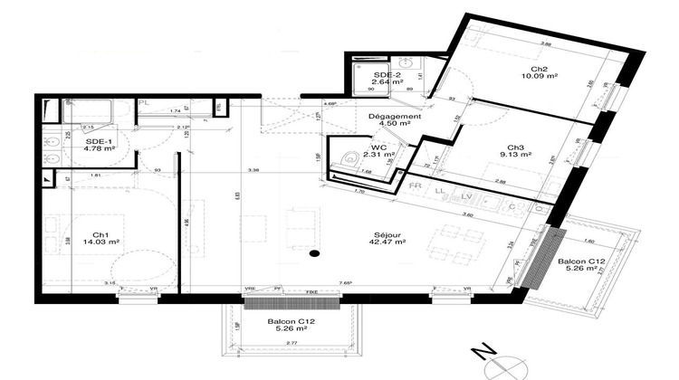
Le cabinet FOLLIOT vous propose dans un nouveau programme à Douvres la Délivrande ce magnifique appartement de 88.93m² avec un BALCON de 10.52 m². Informations et réservation avec Pierrick Bourgoin - tel: O6-26-77-69-7I FRAIS DE NOTAIRES REDUITS. livraison 2027. Comprenant : entrée avec placard, pièce de vie avec cuisine ouverte de 42m² donnant sur deux balcons, trois chambres, deux salles d'eau, wc. Le chauffage est assuré par des radiateurs au gaz. En plus, vous bénéficierez de deux boxes fermés au sous-sol. D'AUTRES LOTS SONT DISPONIBLES : tel: O6-26-77-69-7I La localisation est idéale, à proximité de plusieurs établissements scolaires tels que l'École primaire Marie Curie, le Lycée technologique privé Notre-Dame de Nazareth, et le Collège Clément Marot. Ne manquez pas cette opportunité, contactez l'agence FOLLIOT pour plus d'informations. Pierrick BOURGOIN (EI) Agent Commercial - Numéro RSAC : 481 745 107 - Caen.



