Vente Appartement 50350, Donville-les-Bains france 281 500 €
Descriptif du bien
L'agence 'MON BIEN A LA MER', spécialiste de l'immobilier neuf sur les côtes Bretonnes, vous présente :
400m de la mer !
Projet de construction pour 4è trimestre 2027.
Ascenseur, parquet stratifié, chauffage électrique, domotique.
Frais de notaire réduits.
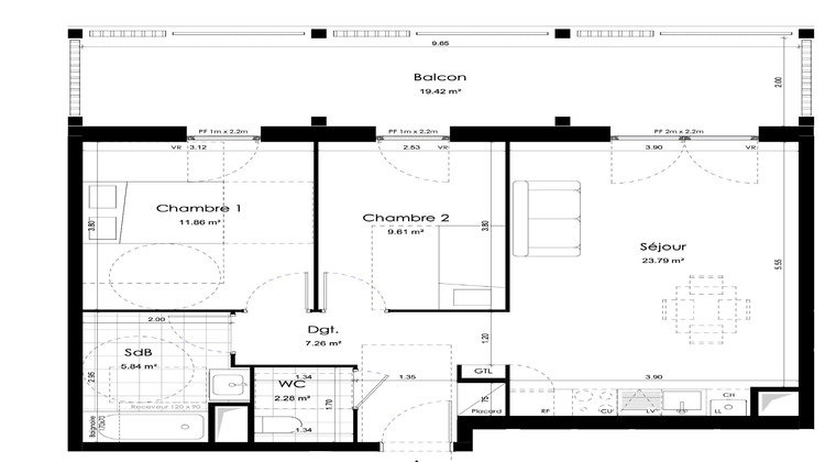
Ce T3 au 4è et dernier étage s'ouvre sur une superbe terrasse de 19,42m2 comprenant :
- séjour, entrée dégagement avec placard,
-deux chambres
- salle de bains,
- wc séparés,
- parking inclus.
Nous Consulter.
Honoraires à la charge du vendeur. Non soumis au DPE. Les informations sur les risques auxquels ce bien est exposé sont disponibles sur le site Géorisques : georisques.gouv.fr.
Votre conseiller MON BIEN A LA MER : Gérant - .fr MON BIEN A LA MER
Carte T CPI 2201 2018 000 025 040
RCP ACM IARD B1 7025278





