Vente Appartement 35120, Dol-de-Bretagne france 183 000 €
Descriptif du bien
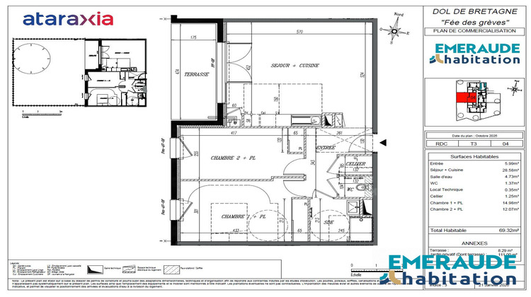
Appartement T3 Location / Accession PSLA
Emeraude Habitation vous propose ce bel appartement T3, situé au rez de chaussée d'une résidence neuve, 'Fée des Grèves', conforme aux normes RE 2020, garantissant performance énergétique, confort thermique et économies d'énergie.
Idéalement situé à proximité immédiate des commerces, services et de la gare, ce logement offre une surface de 69,32 m², parfaitement agencée : Entrée, séjour lumineux avec cuisine ouverte, offrant un espace de vie convivial et fonctionnel Accès direct à un agréable Jardin privé de 111m² avec une terrasse de 8,29 m². Deux chambres confortables équipées de placard de de 14,98 m² et 12,07m²
En complément :
Place de stationnement privative
Local deux-roues sécurisé au sein de la résidence
Cet appartement allie modernité, fonctionnalité et qualité de vie, idéal pour un premier achat ou un projet en location-accession, dans un environnement calme et recherché, à proximité des services, des commerces et de la gare.
Une opportunité à découvrir sans tarder à Dol-de-Bretagne !
Dans une copropriété de 36 lots. Aucune procédure n'est en cours. DPE vierge. Les informations sur les risques auxquels ce bien est exposé sont disponibles sur le site Géorisques : georisques.gouv.fr.
- Type de bien : Appartement
- Surface : 69 m²
- Localisation : France - Bretagne - Ile et Vilaine
- Ville : Dol-de-Bretagne
- Code postal : 35120
- Annonce créée le 27/03/2026



