Vente Appartement 21000, DIJON france 265 000 €
Descriptif du bien
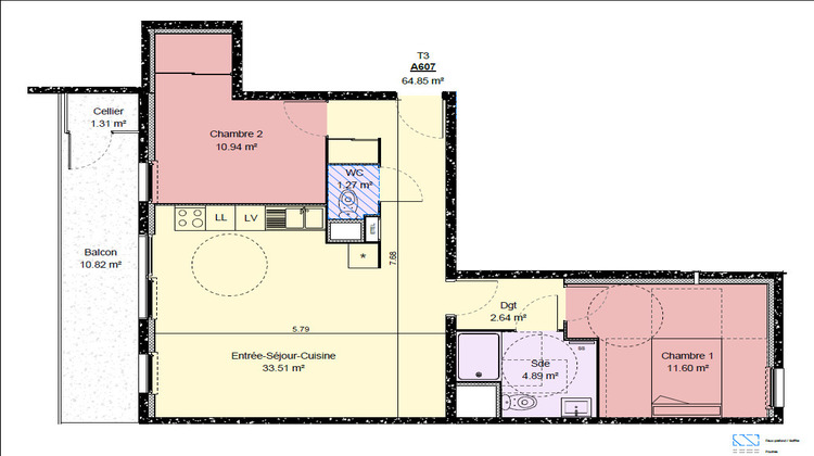
T3 lumineux de 64,85 m² avec balcon. Résidence récente à Dijon Drapeau Au coeur du quartier prisé de l'avenue du Drapeau, à Dijon, découvrez ce bel appartement de 64,85 m², situé au 6e étage sur 7 d'une résidence de 205 avec ascenseur. Un bien rare, alliant modernité, fonctionnalité et confort, à deux pas du tramway et du centre-ville. L'entrée s'ouvre sur un vaste séjour baigné de lumière, prolongé par une cuisine ouverte, idéale pour partager des moments conviviaux. Cet espace de vie donne accès à un balcon de 10 m² exposé ouest, offrant une belle vue dégagée et une ambiance ensoleillée en fin de journée. Côté nuit, deux chambres confortables permettent d'accueillir une famille ou de télétravailler au calme. La salle d'eau est moderne et bien agencée, avec un WC intégré. Un second WC indépendant vient compléter cet espace, pour un confort au quotidien. L'appartement est en excellent état, aucun travaux à prévoir. Le chauffage est collectif via le réseau urbain, assurant performance énergétique et praticité. Le quartier Drapeau, dynamique et bien desservi, met tout à portée : tramway à 100 mètres, commerces de proximité, établissements scolaires, parcs et accès rapide au centre historique de Dijon. Les informations sur les risques auxquels ce bien est exposé sont disponibles sur le site Géorisques : www.georisques.gouv.fr clarinda AFONSO (EI) Agent Commercial - Numéro RSAC : 437539703 - DIJON.
- Type de bien : Appartement
- Surface : 64 m²
- Localisation : France - Bourgogne-Franche-Comté - Côte d'or
- Ville : DIJON
- Code postal : 21000
- Annonce créée le 17/02/2026





