Vente Appartement 62780, CUCQ france 213 000 €
Descriptif du bien
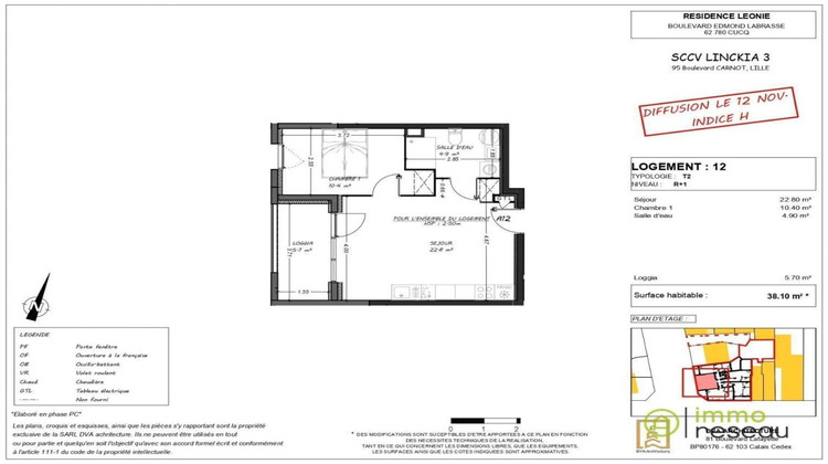
À moins de 2 km des plages, la résidence Villa Léonie offre un cadre de vie côtier privilégié . Le Lot 12 est un T2 de 38,10 m² bien agencé, pensé pour optimiser chaque mètre carré. Son grand séjour-cuisine de 22,80 m² assure une belle luminosité et une vraie convivialité. La chambre de 10,40 m², la salle d'eau de 4,90 m² et une loggia de plus de 5 m² complètent l'ensemble. Une belle option en pied-à-terre comme en investissement locatif. Option de réunion de lots Le Lot 12 peut être réuni avec le Lot 11 voisin (41,90 m²) pour constituer un appartement sur mesure de plus de 80 m² habitables, à double exposition. L'ensemble offrirait alors trois espaces extérieurs dont la terrasse de 18,80 m² du Lot 11 et deux loggias. Détail du Lot 11 : chambre de 11,70 m², salle d'eau de 5,40 m², terrasse de 18,80 m² et loggia de plus de 6 m² (traversant). Modifications envisageables selon avancement des travaux et contraintes techniques validées par le maître d'œuvre. Informations pratiques - ouvert à la réservation -Livraison prévisionnelle : 2027 -Frais de notaire réduits (neuf) -Plans et notices descriptives disponibles sur demande Pour visiter et vous accompagner dans votre projet, contactez Christelle HERLEM 06 83 68 32 11 Honoraires à la charge du vendeur Prix de vente 213 000 € Selon l'article L.561.5 du Code Monétaire et Financier, pour l'organisation de la visite, la présentation d'une pièce d'identité vous sera demandée. Les informations sur les risques auxquels ce bien est exposé sont disponibles sur le site Géorisques : www.georisques.gouv.fr Cette présente annonce a été rédigée sous la responsabilité éditoriale de Christelle HERLEM agissant sous le statut d'agent commercial immatriculé au Ville du greffe : DOUAI sous le numéro RSAC N° 921 757 076 auprès de la SAS IMMO RESEAU au capital de 10 000€ - Réseau national immobilier sur internet, 44 Allée des Cinq Continents - 44120 VERTOU - RNE NANTES 519 718 886. Carte professionnelle T et G n° CPI 3002 2018 000 024 971 CCI de Nantes-Saint-Nazaire (44) ; Garantie par GALIAN – 89 rue de la Boétie - 75008 Paris N°171379G pour 120 000€ pour T. Assurance responsabilité civile professionnelle par GALIAN n° de police 120 137 405 (réf. 38765) - Le professionnel garantit et sécurise votre projet immobilier Bien soumis au statut juridique de la Copropriété. Nb de lots : 11. Pas de procédure en cours. Surface CARREZ : 22.8 m² Bien soumis au statut juridique de la Copropriété. Nb de lots : 11. Pas de procédure en cours.
- Type de bien : Appartement
- Surface : 38 m²
- Localisation : France - Hauts-de-France - Pas de Calais
- Ville : CUCQ
- Code postal : 62780
- Annonce créée le 18/04/2026

