Vente Appartement 62780, CUCQ france 249 000 €
Descriptif du bien
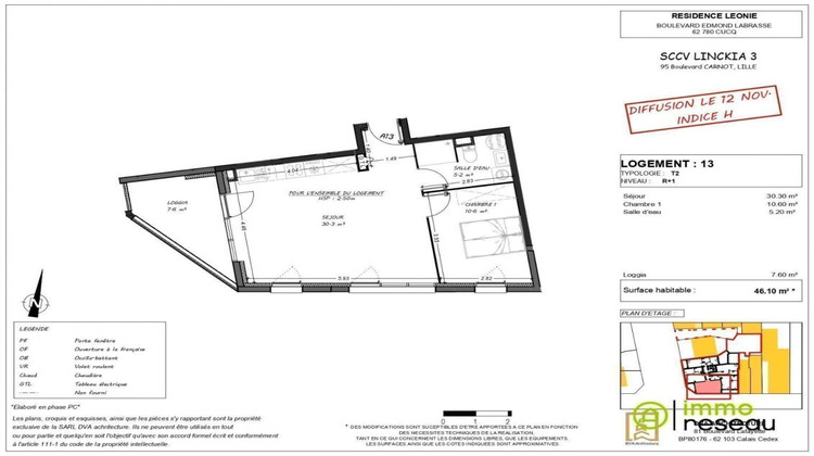
Le Luxe de l'Espace au Premier Étage de la Villa Léonie en Bord de Mer-Cucq Découvrez une opportunité unique au sein du prestigieux programme Villa Léonie. Idéalement situé en bord de mer, à moins de 2 km des plages, le Lot 13 est l'appartement qu'il vous faut si vous recherchez le confort d'un grand espace dans un T2 neuf. Le Lot 13 : L'Espace Réinventé (46,10 m²) Situé au premier étage, ce T2 a été conçu pour offrir des volumes intérieurs hors norme. Son atout principal est son séjour-cuisine de plus de 30 m², une surface rarement atteinte pour ce type de bien, garantissant un confort et une convivialité maximales. Vous profiterez également d'une superbe loggia de 7,60 m², un véritable prolongement de votre espace de vie pour vos moments de détente en extérieur. Détails du Lot 13 (46,10 m²): Séjour-cuisine spectaculaire : Plus de 30 m² Chambre confortable : 10,60 m² Salle d'eau moderne : Plus de 5 m² Extérieur généreux : Loggia de 7,60 m² Informations Clés du Programme Villa Léonie Programme situé à Cucq, à moins de 2 km de la plage. Ouvert à la réservation. Livraison prévisionnelle :Fin 2027 Frais de notaire réduits Modifications envisageables selon avancement des travaux et contraintes techniques validées par le maître d'œuvre. Saisissez l'occasion de devenir propriétaire d'un T2 d'exception. Ne manquez pas cette rareté sur le marché ! Les plans détaillés et les notices descriptives du programme vous seront fournis sur simple demande. Contactez-nous sans tarder pour réserver ce lot qui ne restera pas longtemps disponible ! Pour visiter et vous accompagner dans votre projet, contactez Christelle HERLEM 06 83 68 32 11 Honoraires à la charge du vendeur Prix de vente 249 000 € Selon l'article L.561.5 du Code Monétaire et Financier, pour l'organisation de la visite, la présentation d'une pièce d'identité vous sera demandée. Les informations sur les risques auxquels ce bien est exposé sont disponibles sur le site Géorisques : www.georisques.gouv.fr Cette présente annonce a été rédigée sous la responsabilité éditoriale de Christelle HERLEM agissant sous le statut d'agent commercial immatriculé au Ville du greffe : DOUAI sous le numéro RSAC N° 921 757 076 auprès de la SAS IMMO RESEAU au capital de 10 000€ - Réseau national immobilier sur internet, 44 Allée des Cinq Continents - 44120 VERTOU - RNE NANTES 519 718 886. Carte professionnelle T et G n° CPI 3002 2018 000 024 971 CCI de Nantes-Saint-Nazaire (44) ; Garantie par GALIAN – 89 rue de la Boétie - 75008 Paris N°171379G pour 120 000€ pour T. Assurance responsabilité civile professionnelle par GALIAN n° de police 120 137 405 (réf. 39766) - Le professionnel garantit et sécurise votre projet immobilier Bien soumis au statut juridique de la Copropriété. Nb de lots : 11. Pas de procédure en cours. Prix de vente 249 000 € Honoraires à la charge du vendeur Surface CARREZ : 46.1 m² Bien soumis au statut juridique de la Copropriété. Nb de lots : 11. Pas de procédure en cours. Prix de vente 249 000 € Honoraires à la charge du vendeur
- Type de bien : Appartement
- Surface : 46 m²
- Localisation : France - Hauts-de-France - Pas de Calais
- Ville : CUCQ
- Code postal : 62780
- Annonce créée le 18/04/2026


