Vente Appartement 59170, Croix france 600 000 €
Descriptif du bien
La résidence LeNôtre se trouve au sein d'un quartier calme, avenue LeNôtre, à proximité du centre, de quoi se rendre aux commerces en toute simplicité.
À 2 pas du Parc Barbieux et de ses 34 hectares de verdure, la résidence LeNôtre bénéficie d'une proximité rare avec la nature. Elle est toute proche des accès aux transports, avec 1 arrêt de métro et 2 arrêts de tramway à moins de 15 minutes à pied, idéal pour se déplacer à Lille quand on le souhaite. Pour les familles, 3 écoles, de la maternelle à la primaire, jouxtent la résidence.
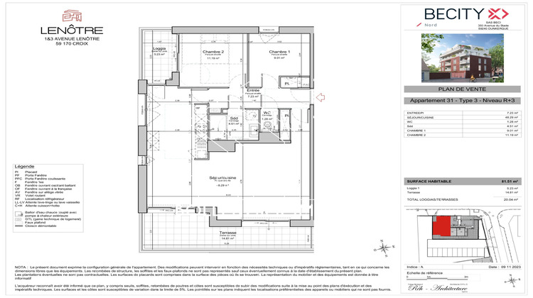
Répartis sur 5 niveaux seulement, les 12 appartements du 2 au 4 pièces en attique forment un ensemble à taille humaine. Chacun dispose d'un balcon ou d'une terrasse, véritable pièce supplémentaire donnant de belles vues sur les abords végétalisés.
Les intérieurs ont été conçus pour que tous les habitants du foyer y trouvent leur espace personnel. Les pièces à vivre ont des surfaces généreuses. Elles sont baignées de lumière grâce à de larges ouvertures sur l'extérieur. Les chambres sont parfaitement agencées pour assurer l'intimité de tous. Les fenêtres sont équipées de doubles vitrages assurant une parfaite isolation phonique et thermique.
DES PRESTATIONS TOUT CONFORT :
Volets roulants avec motorisation et commande par interrupteur dans toutes les pièces.
Parquet stratifié dans les pièces sèches.
Menuiseries en aluminium.
Carrelage 45x45 dans les pièces humides.
Faïences murales toute hauteur sur la périphérie du receveur de douche ou de la baignoire.
Aménagement des placards.
Chauffage et production d'eau chaude assurés à partir d'une pompe à chaleur. Plancher chauffant avec thermostat d'ambiance programmable.
Places parking et garages au rez-de-chaussée.
Local à vélo.
2 locaux d'activités au rez-de-chaussée.
LIVRAISON : 2ème T 2026.
OFFRES DE LANCEMENT :
T2 à partir de 220 000 EUR avec stationnement : Pack investisseur offert : Frais de notaire + Cuisine (à hauteur de 2 500 euros)
T3 à partir de 460 000 EUR avec stationnement : Frais de notaire offert + Carte cadeau de 2 500 euros
T4 à partir de 540 000 EUR : Frais de notaire + carte cadeau de 3 000 euros
Offre valable dans la limite des 5 premières réservations.
Retrouvez tous nos biens sur bollengierimmo.com
Les informations sur les risques auxquels ce bien est exposé sont disponibles sur le site Géorisques : www.georisques.gouv.fr
- Type de bien : Appartement
- Surface : 99 m²
- Localisation : France - Hauts-de-France - Nord
- Ville : Croix
- Code postal : 59170
- Annonce mise à jour le 08/10/2025


