Vente Appartement 94000, Créteil france 199 000 €
Descriptif du bien
Iad France - Fatiha El Idrissi vous propose : SECTEUR CRÉTEIL PRÉFECTURE
Rue Claude Perrault / Rue Pierre Lescot
A moins de 7min à pied du métro et de toutes les commodités, situé dans une résidence fermée et sécurisée, bel appartement entièrement rénové avec goût et modernité en 2023.
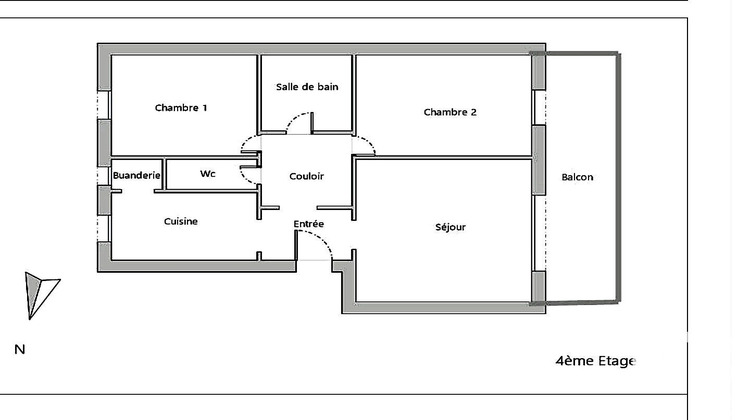
Au 4eme et dernier étage SANS ascenseur traversant, fonctionnel, lumineux et très bien agencé sans vis a vis, il se compose d'une entrée, un séjour donnant sur balcon, une cuisine intégralement aménagée et équipée, 2 chambres avec rangements, une salle de bains et WC séparés.
Ce Bien allie confort, sécurité et modernité dans un cadre de vie agréable et recherché. Ne manquez pas cette opportunité unique SANS TRAVAUX.
___CENTRE COMMERCIAL CRÉTEIL SOLEIL à 5min,
___Stationnement libre dans la résidence, (pas de parking attitré).
___Les Grands axes routiers A86 / A4 à proximité,
___Taxe foncière : 1456,
___Charges de copropriété : 222 (eau froide et chauffage)
___Ravalement récent,
___Calme et tranquillité garantis !
La presente annonce immobiliere vise 2 lots situés dans une copropriété de 80 lots au total et ne faisant l'objet d'aucune procédure en cours citée à l'article L. 721-1 du code de la construction et de l'habitation. Montant moyen mensuel de charges déclaré par le vendeur : 222.33¤ par mois (soit 2668 ¤ annuel). Honoraires d'agence à la charge du vendeur.
Information d'affichage énergétique sur ce bien : classe ENERGIE F indice 381 et classe CLIMAT C indice 22. Les informations sur les risques auxquels ce bien est exposé, y compris l'obligation légale de débroussaillement, sont disponibles sur le site Géorisques : http://www.georisques.gouv.fr.
La présente annonce immobilière a été rédigée sous la responsabilité éditoriale de Mme Fatiha El Idrissi mandataire indépendant en immobilier (sans détention de fonds), agent commercial de la SAS I@D France immatriculé au RSAC de CRETEIL sous le numéro 410 896 633, titulaire de la carte de démarchage immobilier pour le compte de la société I@D France SAS.
Informations LOI ALUR :
Soumis au régime de copropriété.
Nombre de lots : 80.
Quote part annuelle(moyenne) : 2668 euros.
Honoraires charge vendeur. (gedeon_6727_30660800)
- Type de bien : Appartement
- DPE : F - 331 à 450 kWh/².an
- GES : C - 11 à 20 kg eq CO2/².an
- Surface : 59 m²
- Localisation : France - ile-de-france - Val de Marne
- Ville : Créteil
- Code postal : 94000
- Annonce mise à jour le 15/01/2026





