Vente Appartement 69290, CRAPONNE france 159 000 €
Descriptif du bien
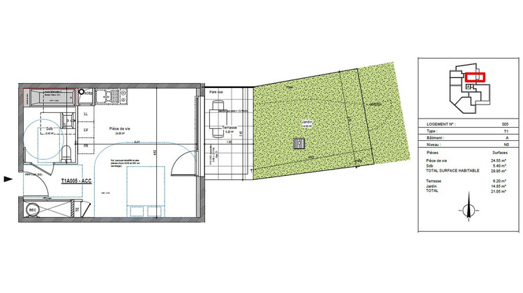
En date du vendredi 27 février 2026 (date de mise à jour de l'annonce) le bien est disponible ** Caractéristiques principales : ** aux normes PMR Studio - pièce unique 29.95m² rez-de-jardin Séjour de 24.55m² cuisine ouverte sur séjour possibilité garage en sous-sol (+20'000 euros) Diagnostics énergétiques : RE2020 Proximité commerces, marchés, collèges, école primaire, bus TcL C24 Livraison prévisionnelle : 2e semestre 2027 Christophe MORTON immobilier vous invite à découvrir cet appartement de type Studio, d'une superficie de 29.95m² en loi Carrez, situé au rez-de-jardin d'une copropriété qui sera livrée au cours du 2e semestre 2027 Ce bien immobilier se compose d'un séjour-cuisine (24.55m²), d'une salle d'eau (6,2m²), et de WC dans la pièce d'eau Le bien comprend également une possibilité garage en sous-sol (+20'000 euros) et est équipé peinture de finition blanche, menuiseries PVC, volets roulants électriques et manuelle dans dans les pièces de nuit, porte palière 3 points A.2P*, est raccordé à la fibre, . Situé dans un environnement urbain, à proximité des Bus TCL C22 - C24 - JD653 - JD786 à 3 minutes à pied de la résidence (arrêt Craponne DUMOND), des commerces du quotidien, , cet appartement bénéficie d'un emplacement de choix., cet appartement répondra à la norme énergétique RE2020 Que vous soyez à la recherche de votre résidence principale ou d'un investissement cet appartement peut répondre à vos attentes, du fait de sa situation géographique, de ses performances énergétiques, de sa garantie décennale,. ,. ,. Craponne est située à 13 km à l'ouest de Lyon seulement et au pied du site merveilleux des monts du Lyonnais. La commune accueille de nombreuses entreprises artisanales, industrielles et de nombreux commerces de proximité. Les marchés forains des mercredis et samedis matin sont bien connus de l'ouest lyonnais et participent à l'animation de la ville. La vie associative est très active (activités sportives, culturelles, ). Craponne, fort d'un attrait économique, commerçant et culturel, reste une commune où il fait bon vivre. Craponne est proche de Tassin-la-Demi-Lune (6Kms), Francheville (4Kms), Brindas (4Kms), Grézieu-la-Varenne (3Kms), Saint-Genis-les-Ollières (2Kms), Sainte-Consorce (6Kms), Marcy-l'Étoile (6Kms), Lyon (13Kms) #AVendre #Studio #ImmobilierCraponne #pièceunique #Immobilier #immobilierneuf #Investissement #Opportunité #a?vendre #Vente #ProjetDeVie #ProcheCommodités #ProjetImmobilier #vefa #ventesurplan #fraisdenotairereduits #Garage #AppartementAVendre #VenteAppartement #appartementpièce unique N'attendez plus pour concrétiser votre projet immobilier ? ? Pour plus d'informations ou pour organiser une visite, contactez Christophe MORTON au 06 73 84 29 22 (appels / sms) - Agent immobilier certifié - Carte professionnelle n°CPI 6901 2024 000 000 033 Copropriété de 35 lots - dont 35 lots habitation.(Pas de procédure en cours).
- Type de bien : Appartement
- Surface : 29 m²
- Localisation : France - Auvergne-Rhône-Alpes - Rhône
- Ville : CRAPONNE
- Code postal : 69290
- Annonce créée le 03/03/2026





