Vente Appartement 56950, Crach france 303 000 €
Descriptif du bien
Iad France - Marc Franc (07 80 36 67 20) vous propose : === Livrable immédiatement - FRAIS NOTAIRE OFFERTS jusqu'au 31 mars 2026 ===
DERNIÈRE OPPORTUNITÉ - T3 - Résidence 'LANN AR MOR' à CRAC'H : VOTRE RÉSIDENCE PRINCIPALE OU SECONDAIRE PROCHE DES PLAGES.
Résidence « LANN AR MOR », un emplacement d'exception, au coeur du Parc Naturel Régional du GOLFE DU MORBIHAN (petite mer), 5 min d'Auray, 20 min de Vannes et 30 min de Lorient.
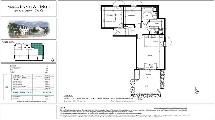
- Appartement 3 pièces, 2 chambres, niveau RDC,. orientation Sud,. contenance totale de 67 m² environ,. jardin 19 m² environ, terrasse de 7 m² environ environ,. cellier 3 m² environ,. parking aérien (lot secondaire),. frais de notaire estimés à 8000 euros en moyenne.
CRAC'H, aux charmes typiques des communes du sud de la Bretagne, où se conjuguent douceur de vivre et havre de paix, sur un territoire riche de sa culture, de son tissu économique, de son tourisme.
Logements TOUT CONFORT du 2 au 4 pièces répartis sur sept bâtiments, de 2 étages, à l'architecture régionale pensée pour allier élégance et authenticité. Une excellente occasion pour habiter ou investir dans un cadre préservé.
Ne manquez pas de concrétiser votre rêve, profitez des multiples atouts de cette opportunité à CRAC'H, commune accueillante et dynamique, nombreux équipements sportifs, services de proximité (écoles, commerces, service à la santé), environnement idéal pour les amoureux de la randonnée et des loisirs nautiques.
Autres logements disponibles :
- 2 à 3 pièces,
- de 64 à 74 m² environ,
- tous orientés au sud,
- avec parking aérien (lot secondaire),
- certains avec terrasse et jardin privatif,
- d'autres avec balcon,
- ou cellier et parking aérien (lots secondaires)
Règlementation Environnementale RE 2020. Date de livraison fin 2025
Contactez-moi pour en savoir plus et réserver.
Honoraires d'agence à la charge du vendeur. Bien non soumis au DPE. Les informations sur les risques auxquels ce bien est exposé sont disponibles sur le site Géorisques : www.georisques.gouv.fr. La présente annonce immobilière a été rédigée sous la responsabilité éditoriale de M. Marc Franc EI (ID 83540), mandataire indépendant en immobilier (sans détention de fonds), agent commercial de la SAS I@D France immatriculé au RSAC de VANNES sous le numéro 931732952, titulaire de la carte de démarchage immobilier pour le compte de la société I@D France SAS.
Retrouvez tous nos biens sur notre site internet. www.iadfrance.fr.Informations LOI ALUR : Honoraires charge vendeur. (gedeon_6727_32417988)




