Vente Appartement 93470, Coubron france 260 000 €
Descriptif du bien
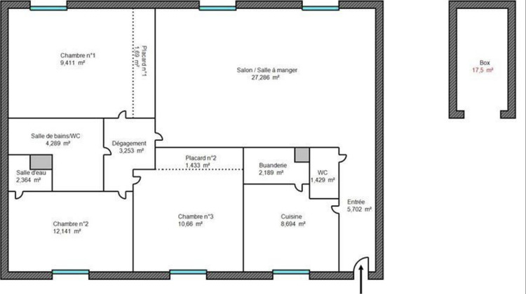
Dans une charmante copropriété nichée au coeur d'une résidence récente (2001), à proximité immédiate de la forêt de Bondy et des écoles, découvrez ce bel appartement de 4 pièces, d'une superficie de 90 m2, offrant de faibles charges et un cadre de vie paisible, proche de la nature.
Ce bien se compose d'une entrée accueillante, un séjour lumineux ouvrant sur un jardin privatif, une cuisine indépendante avec cellier, trois chambres confortables, une salle de bains, une salle d'eau et un WC séparé.
Un box fermé et une place de stationnement privativePour un confort optimal, l'appartement est équipé de la climatisation. Les prestations rares telles que le jardin, le stationnement sécurisé et les volumes généreux garantissent un bien-être quotidien et une praticité absolue.
'Les informations sur les risques auxquels ce bien est exposé sont disponibles sur le site Géorisques : www.georisques.gouv.fr'.
Informations financières et copropriétéo
Montant moyen annuel des charges (budget prévisionnel) : 1 884 EUR, soit 157 EUR par moiso Honoraires d'agence : 3,77 % TTC, à la charge de l'acquéreur (soit 255 000 EUR hors honoraires)o
Statut juridique : Le bien est soumis au régime de la copropriétéo
Procédures en cours : Aucune procédure connueo
Montant des charges provisionnelles : 157 EUR/mois
- Type de bien : Appartement
- DPE : D - 151 à 230 kWh/².an
- GES : B - 6 à 10 kg eq CO2/².an
- Surface : 90 m²
- Localisation : France - ile-de-france - Seine Saint Denis
- Ville : Coubron
- Code postal : 93470
- Annonce mise à jour le 26/11/2025





